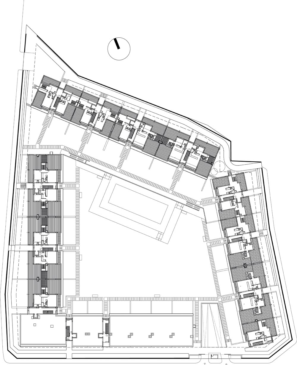
Plan
29/31
Paylaş
Resmi Orjinal Boyutunda Göster
Doğa Meşe Park Evleri
Project Location: Kemerburgaz, Eyüpsultan, İstanbul
Project Office: Çinici Mimarlık, Boran Ekinci Mimarlık
Project Type: Housing Complex
Tasarım Ekibi: Can Çinici, Boran Ekinci
Employer: Doğa Gayrimenkul
Yardımcı: Çağlayan Çağbayır, Melis Cankara, Aydın Bilgin, Nilay Arslan, Esra Parlak, Gülnur Arısalan, Togay Özkaraduman
Peyzaj Mimarlığı: Chevrel Traher
Structural Project: Mustafa Kayış
Mechanical Project: Cafer Aktürk
Project Start Date: 2005
Project End Date: 2005
Construction Start Date: 2006
Construction End Date: 2007
Building Plot Area: 13.277 m²
Total Construction Area: 33.481 m²