Plan
21/25
Paylaş
Resmi Orjinal Boyutunda Göster
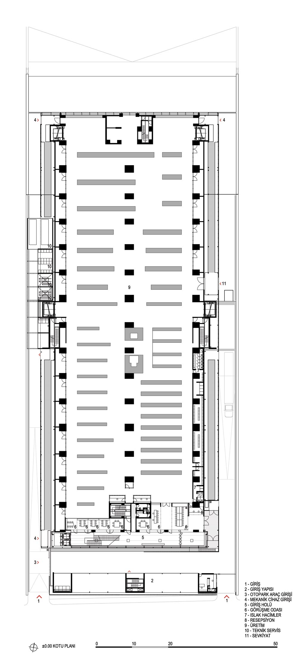
Umur Basım ve Kırtasiye Fabrikası
Proje Yeri: Ümraniye, İstanbul
Proje Ofisi: Nevzat Sayın Mimarlık Hizmetleri (NSMH)
Proje Tipi: Fabrika
Tasarım Ekibi: Nevzat Sayın, Ebru Tabak, Onur Eroğuz, Bahar Ünlü, İbrahim Eyüp
İşveren: Umur Basım ve Kırtasiye San. ve Tic. AŞ
Proje Başlangıç Yılı: 2003
Proje Bitiş Yılı: 2007
İnşaat Başlangıç Yılı: 2003
İnşaat Bitiş Yılı: 2007
Arsa Alanı: 9.000 m²
Toplam İnşaat Alanı: 43.000 m²