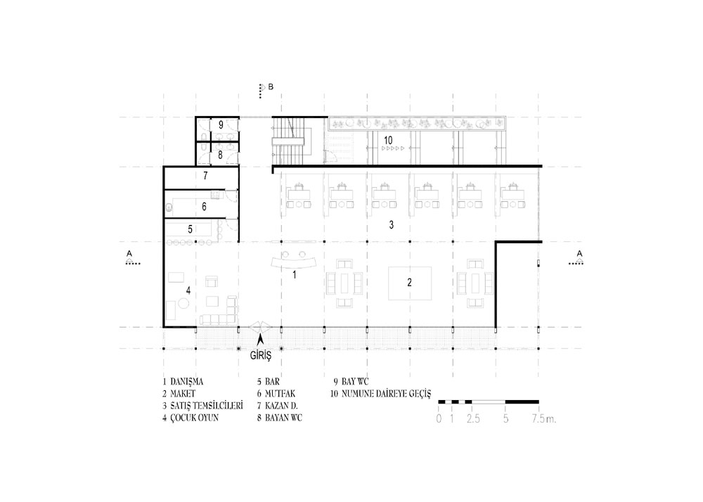
Zemin Kat Planı
36/42
Paylaş
Resmi Orjinal Boyutunda Göster
Parkoran Satış Ofisi
Proje Yeri: Ankara, Çankaya
Proje Ofisi: ACE Mimarlık
Proje Tipi: Satış Ofisi
Proje Tipi Grubu: Ticari
Tasarım Ekibi: Ahmet Can Ersan, Orçun Ersan, Nilgün Deniz
İşveren: Mesa-Aktürk-Emlak Pazarlama İş Ortaklığı
İç Mekan Projesi: Hakan Evkaya
Proje Başlangıç Yılı: 2007
Proje Bitiş Yılı: 2007
İnşaat Başlangıç Yılı: 2007
İnşaat Bitiş Yılı: 2007