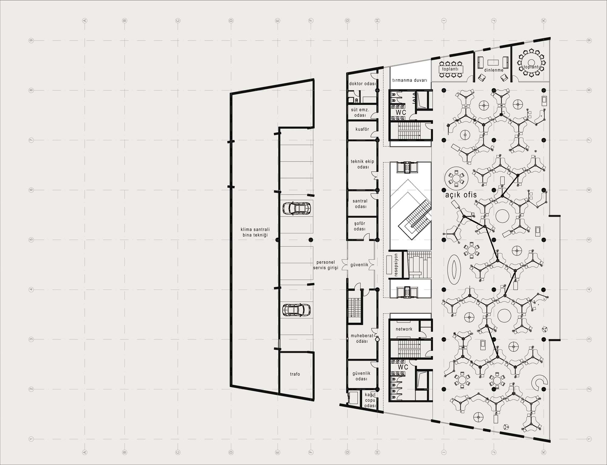
1. Bodrum Kat Planı
10/20
Paylaş
Resmi Orjinal Boyutunda Göster
Turkcell AR-GE Binası
Proje Yeri: Kocaeli (İzmit)
Proje Ofisi: Erginoğlu & Çalışlar Mimarlık
Proje Tipi: Ar-Ge Binası
Tasarım Ekibi: Kerem Erginoğlu, Hasan Çalışlar
İşveren: Turkcell
Yardımcı: Okan Bayık, Romain Cadoux, Işık Süngü, Barış Yüksel, Türkan Yılmaz
Proje Başlangıç Yılı: 2007
Proje Bitiş Yılı: 2008
İnşaat Başlangıç Yılı: 2007
İnşaat Bitiş Yılı: 2008
Arsa Alanı: 86.000 m2
Toplam İnşaat Alanı: 8.100 m2