Kesit
20/20
Paylaş
Resmi Orjinal Boyutunda Göster
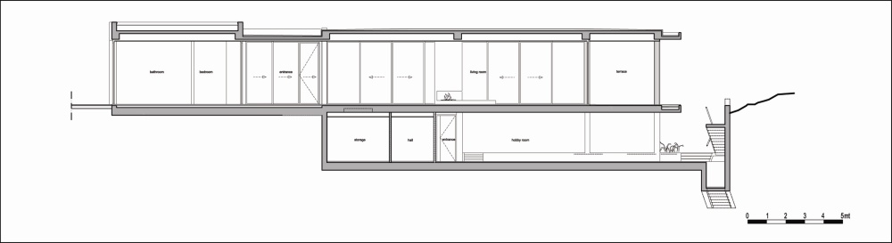
Yalıkavak Evi
Proje Yeri: Muğla
Proje Ofisi: Boran Ekinci Mimarlık
Proje Tipi: Tek Ev / Villa
Tasarım Ekibi: Boran Ekinci
Yardımcı: Yeliz Tekin Yeşilçimen, Haluk Kuvvetli
Ana Yüklenici: Oktay İnşaat
İç Mekan Projesi: Merve Kösematoğlu Interiors
Proje Başlangıç Yılı: 2006
Proje Bitiş Yılı: 2008
İnşaat Başlangıç Yılı: 2007
İnşaat Bitiş Yılı: 2008
Arsa Alanı: 5.800 m2
Toplam İnşaat Alanı: 480 m2