31302
16/16
Paylaş
Resmi Orjinal Boyutunda Göster
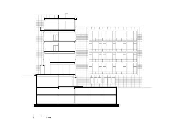
Meteksan Sistem - Finansbank Sistem Ortak Binası
Project Location: Çankaya, Ankara
Project Office: ARTI Tasarım Uygulama
Project Type: Offices
Tasarım Ekibi: Hüseyin Bütüner, Hilmi Güner
Employer: Cyberpark AŞ
Yardımcı: Özgül Çetin, Kevser Çakan
Project Start Date: 2006
Project End Date: 2006
Construction Start Date: 2007
Construction End Date: 2007
Building Plot Area: 4.875 m²
Total Construction Area: 8.000 m²