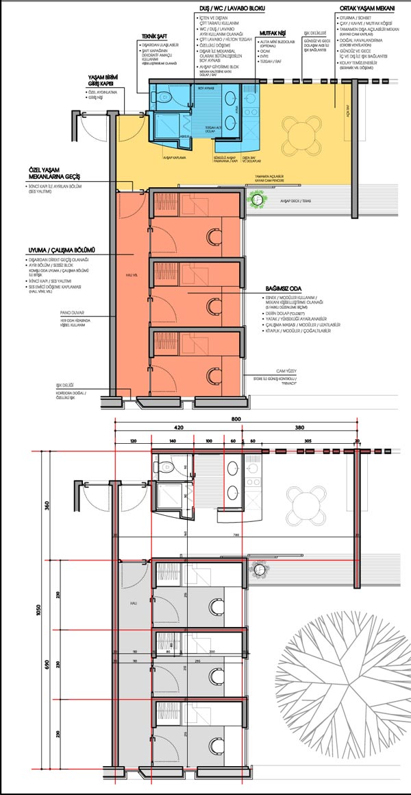
Yaşam Birimi Planı
3/52
Paylaş
Resmi Orjinal Boyutunda Göster
ODTÜ Kuzey Kıbrıs Kampüsü Yurt Blokları
Proje Yeri: Güzelyurt, Kuzey Kıbrıs Türk Cumhuriyeti (KKTC)
Proje Ofisi: Tektonika Mimarlık
Proje Tipi: Yurt / Konukevi
Tasarım Ekibi: Semra Teber Yener, Figen Yücel
İşveren: Orta Doğu Teknik Üniversitesi (ODTÜ) Rektörlüğü
Proje Başlangıç Yılı: 2005
Proje Bitiş Yılı: 2005
İnşaat Başlangıç Yılı: 2006
İnşaat Bitiş Yılı: 2007
Arsa Alanı: 11.500 m2
Toplam İnşaat Alanı: 14.000 m²