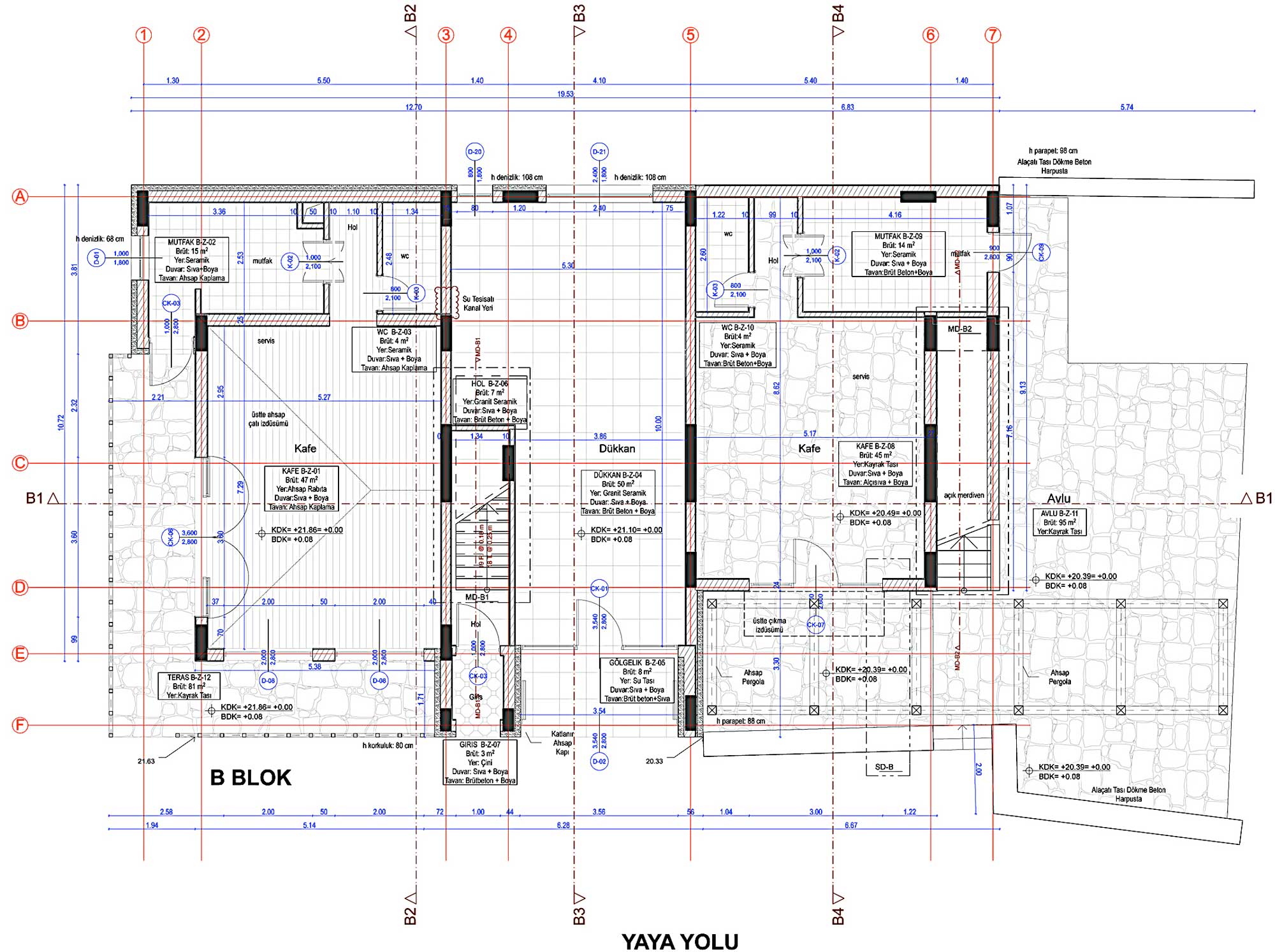
B Blok Plan
12/15
Paylaş
Resmi Orjinal Boyutunda Göster
Alaçatı Yeldeğirmenleri Parkı ve Giriş Meydanı Kentsel Tasarımı
Proje Yeri: İzmir
Proje Ofisi: UrbAr Kentleşme ve Mimarlık
Proje Tipi: Kentsel Tasarım
Proje Tipi Grubu: Kentsel Tasarım
Tasarım Ekibi: Ali Kural
İşveren: Alaçatı Belediyesi
Yardımcı: B. Deniz Çalış, Deniz İdil Erdemli, Elif Simge Fettahoğlu, Sezin Taner
Peyzaj Mimarlığı: B. Deniz Çalış
İnşaat Başlangıç Yılı: 2008
İnşaat Bitiş Yılı: 2008
Arsa Alanı: 34.000 m2