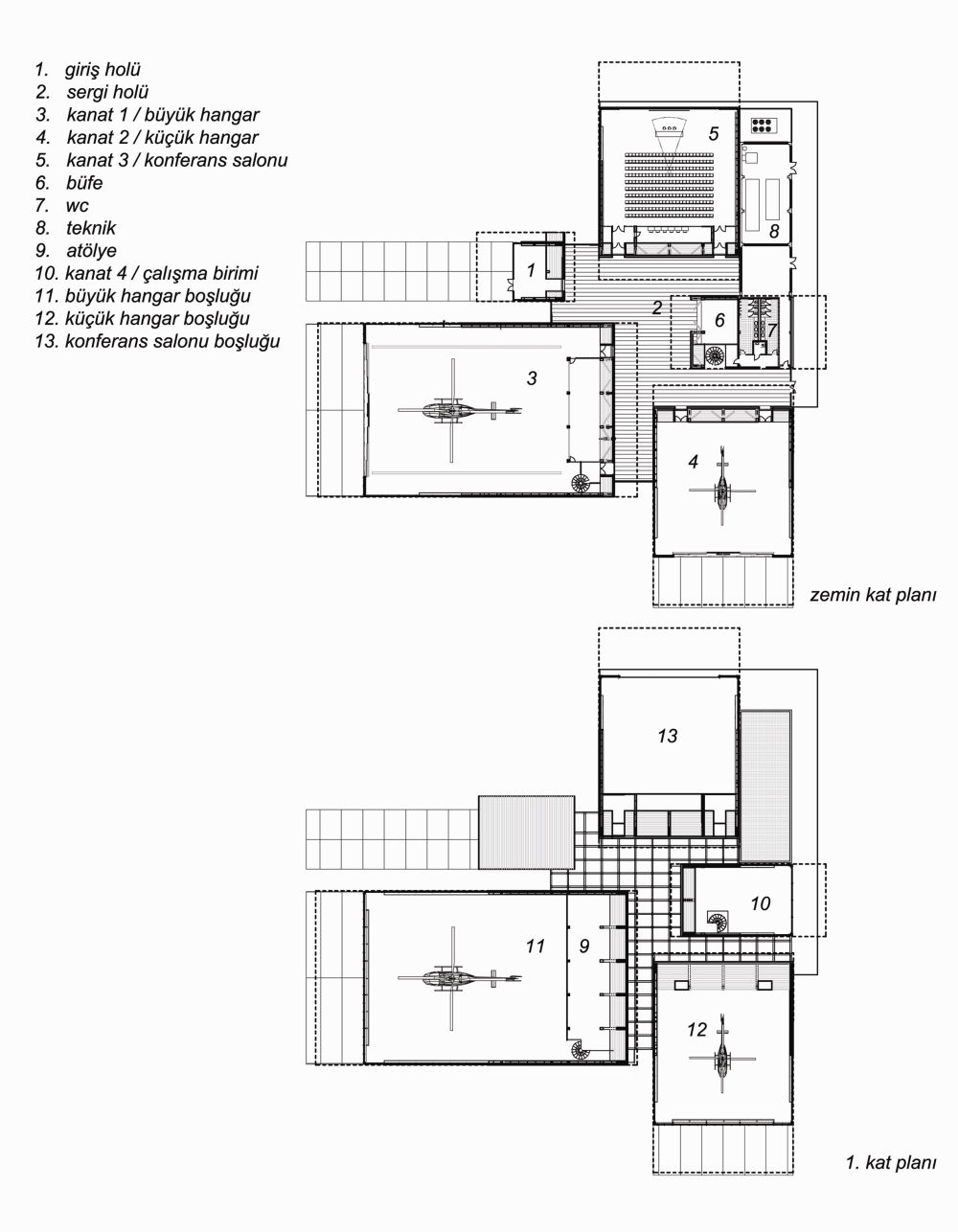
hvc plan
12/15
Paylaş
Resmi Orjinal Boyutunda Göster
İTÜ Toplum Bilim Parkı Havacılık Müzesi
Project Location: Ayazağa, Şişli, İstanbul
Project Office: UMO Mimarlık, SE Mimarlık
Project Type: Museum
Tasarım Ekibi: Selim Velioğlu, Erce Funda, Orkun Özüer, Korhan Torcu
Consultant: Levent Aksüt, Yaşar Marulyalı
Peyzaj Mimarlığı: Selim Velioğlu
Interior Architecture: Selim Velioğlu, Erce Funda, Orkun Özüer
Structural Project: Çelik Yapı
Mechanical Project: Erku Mühendislik
Electrical Project: Meta Ltd.Şti.
Project Start Date: 2007
Project End Date: 2007
Construction Start Date: 2008
Construction End Date: 2009
Building Plot Area: 4.000 m², 3.000 m2