2.BODRUM
9/17
Paylaş
Resmi Orjinal Boyutunda Göster
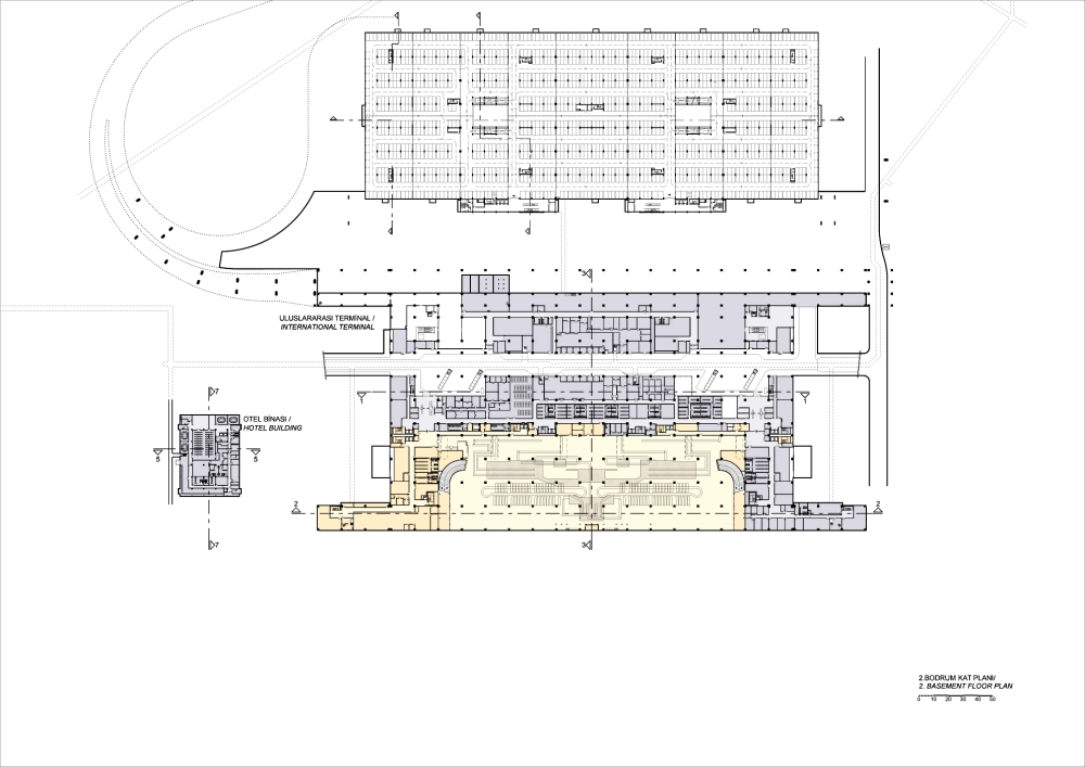
Sabiha Gökçen
Proje Yeri: Kurtköy, İstanbul
Proje Ofisi: Tekeli-Sisa Mimarlık Ortaklığı
Proje Tipi: Havalimanı
Tasarım Ekibi: Doğan Tekeli, Dilgün Saklar, Mehmet Emin Çakırkaya, Nedim Sisa
İşveren: HEAŞ-Limak GMR OG
Yardımcı: Meltem Eryazıcı Özcan, Belkıs Somer, Sena Özeren, Neslihan Can, Gülnaz Güzeloğlu, Aydın Bilgin, Gizem Ünek, Özgür Kayabay, Eylem Öncül, Ayşegül Demetoğlu, Elçin Güner, Pelin Gürkan, Elvan Onar, Begüm Ülker, Selcen Çelik, Ceren Erman, Ceylan Cöbek, Nomi Elhadef
Peyzaj Mimarlığı: Anser Peyzaj Mimarlık
İç Mekan Projesi: Tekeli-Sisa Mimarlık Ortaklığı
Statik Projesi: Tuncel Mühendislik, Arup
Mekanik Projesi: Dinamik Proje Mühendislik
Elektrik Projesi: Enmar Mühendislik, Cedetaş Mühendislik
Proje Başlangıç Yılı: 2007
Proje Bitiş Yılı: 2007
İnşaat Başlangıç Yılı: 2008
İnşaat Bitiş Yılı: 2009
Arsa Alanı: 390.000 m²
Toplam İnşaat Alanı: 345.000 m²