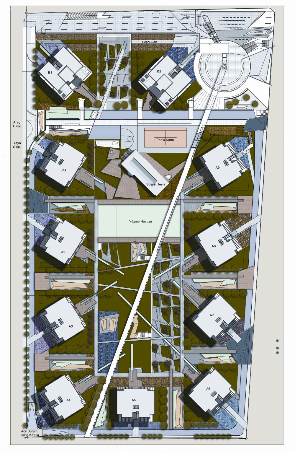
Vaziyet Planı
21/26
Paylaş
Resmi Orjinal Boyutunda Göster
Incity
Proje Yeri: Ataşehir, İstanbul
Proje Ofisi: TAGO Mimarlık
Proje Tipi: Konut Sitesi / Grubu
Tasarım Ekibi: Gökhan Aktan Altuğ, Tatsuya Yamamoto
İşveren: Dündar İnşaat
Yardımcı: Müge Eker Eryayar, Mehmet Yüksel, Afşin Aykanat, Hande Bostancıoğlu
Peyzaj Mimarlığı: S.Ata Turak Peyzaj Mimarlığı, Sami Ata Turak
İç Mekan Projesi: Nedret Erençin
Statik Projesi: Fonksiyon Mühendislik
Mekanik Projesi: Er-sa Mühendislik
Elektrik Projesi: Adel Mühendislik
Proje Başlangıç Yılı: 2005
Proje Bitiş Yılı: 2006
İnşaat Başlangıç Yılı: 2006
İnşaat Bitiş Yılı: 2009
Arsa Alanı: 31.650 m²
Toplam İnşaat Alanı: 120.000 m²