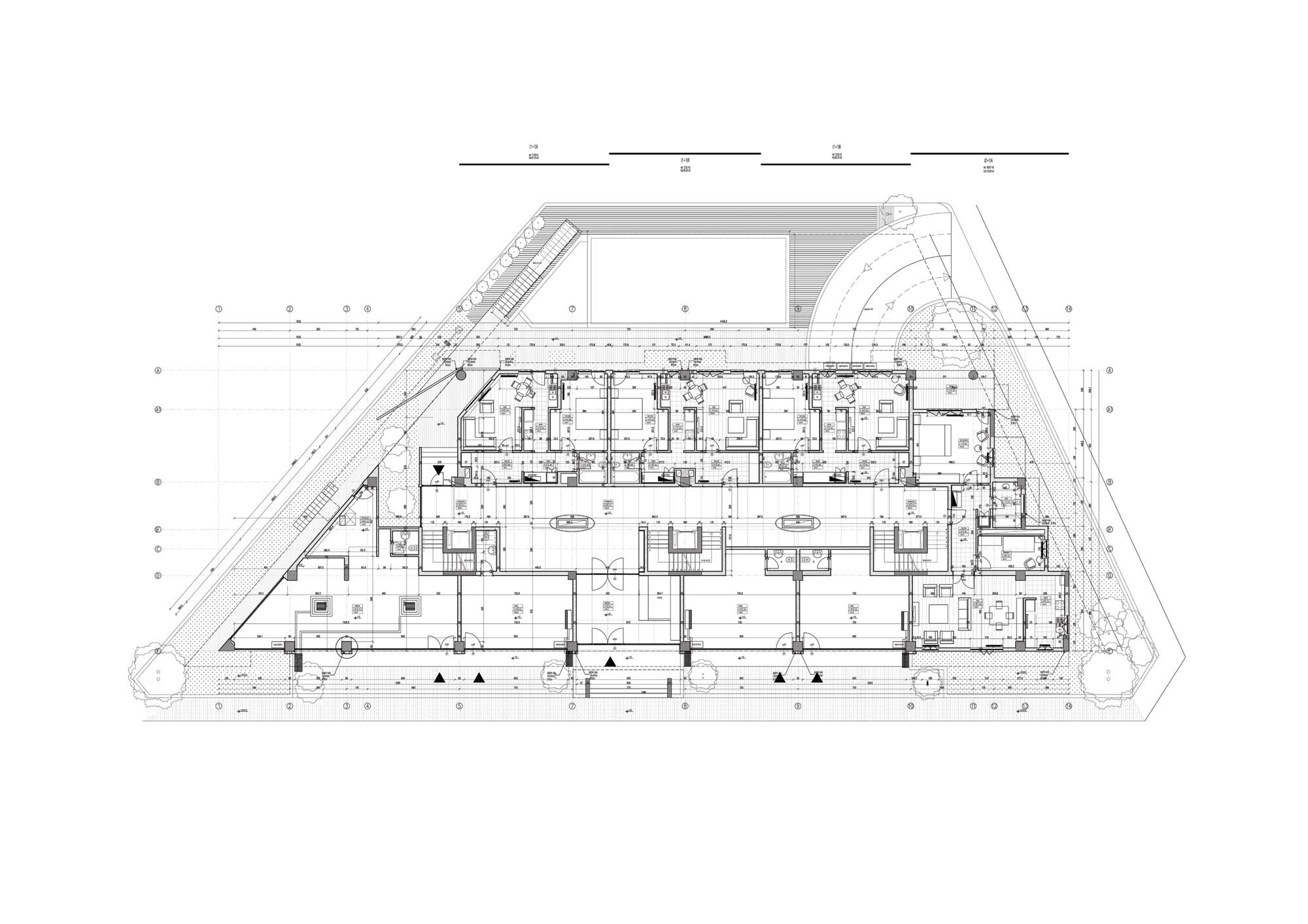
CM Arkiv proje01 Günbatısı-Apartman112 009 giris-kati-plani009
7/10
Paylaş
Resmi Orjinal Boyutunda Göster
Günbatısı
Proje Yeri: Göktürk, İstanbul
Proje Ofisi: CM Mimarlık
Proje Tipi: Konut Sitesi / Grubu
Tasarım Ekibi: Cem Sorguç
İşveren: Akro Yapı
Yardımcı: Çağrı Küçükay
İç Mekan Projesi: CM Mimarlık
Statik Projesi: Hüseyin Öğe
Mekanik Projesi: Hakkı Kurt
Elektrik Projesi: Metin Kurt
Proje Başlangıç Yılı: 2006
Proje Bitiş Yılı: 2007
İnşaat Başlangıç Yılı: 2007
İnşaat Bitiş Yılı: 2009
Arsa Alanı: 1.490 m2
Toplam İnşaat Alanı: 6.642 m2