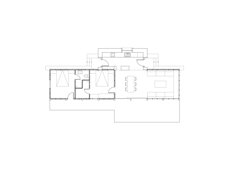
PLAN
10/12
Paylaş
Resmi Orjinal Boyutunda Göster
JZ Evi
Proje Yeri: Kalkan, Antalya
Proje Ofisi: Serhat Akbay Mimarlık
Proje Tipi: Tek Ev / Villa
Tasarım Ekibi: Serhat Akbay
İşveren: Özlem, Jean
Yardımcı: Selçuk Balkan
Proje Başlangıç Yılı: 2008
Proje Bitiş Yılı: 2008
İnşaat Başlangıç Yılı: 2009
İnşaat Bitiş Yılı: 2009
Arsa Alanı: 1.876 m²
Toplam İnşaat Alanı: 76 m²