ZEMIN
34/35
Paylaş
Resmi Orjinal Boyutunda Göster
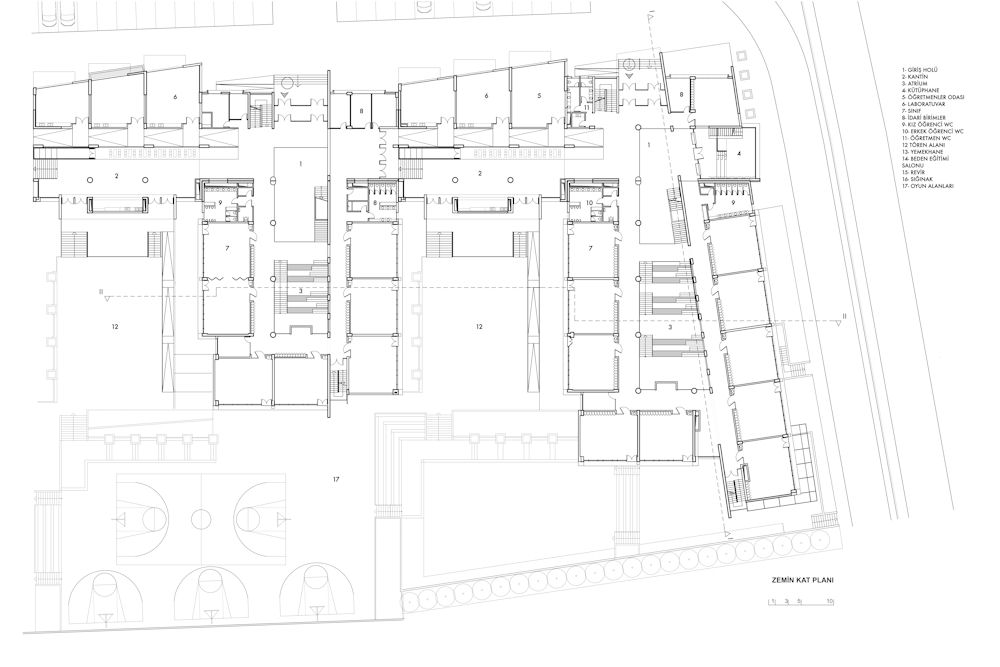
TED Eskişehir Koleji İlköğretim ve Ortaöğretim Okulu (B ve C Blok)
Project Location: Eskişehir
Project Office: Hatırlı Mimarlık
Project Type: Preschool / Nursery, İlkokul, Dormitory / Guesthouse
Tasarım Ekibi: Yeşim Hatırlı, Nami Hatırlı
Employer: Sürel Özel Eğitim Hizmetleri AŞ
Yardımcı: Buket Sermen Birlik, Nazan Çapoğlu, Tuğçe Tosun, Sabri Gökmen
Peyzaj Mimarlığı: Can Kubin, Kemal Özgür
Interior Architecture: Yeşim Hatırlı
Structural Project: Gökhan Beşbaş
Mechanical Project: Nail Pehlivanlı, Filiz Pehlivanlı
Electrical Project: Kemal Aytaç
Project Start Date: 2008
Project End Date: 2008
Construction Start Date: 2008
Construction End Date: 2009
Building Plot Area: 40.000 m²
Total Construction Area: 30.000 m2