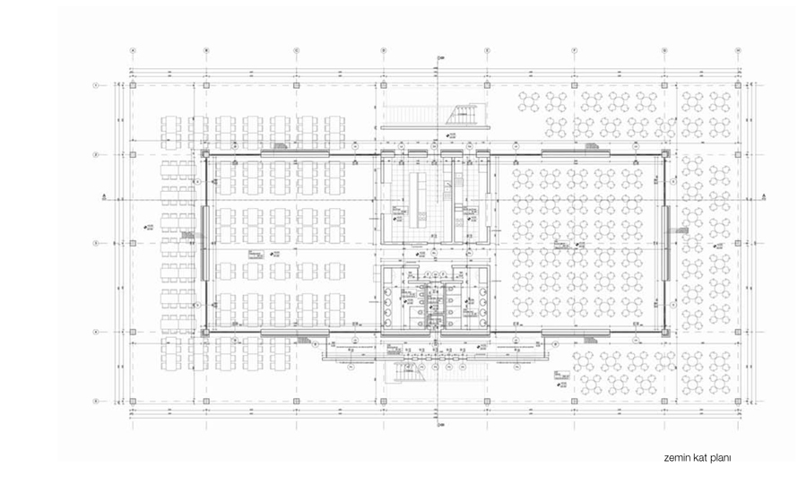
Plan
38/46
Paylaş
Resmi Orjinal Boyutunda Göster
Lüleburgaz Meslek Yüksek Okulu Sosyal Hizmet Yapısı (LMYO)
Fotoğraflar: Boğaçhan Dündaralp ve Lale Ceylan
Project Location: Lüleburgaz, Kırklareli
Project Office: ddrlp Mimarlık ve Tasarım Hizmetleri
Project Type: Social Facility
Tasarım Ekibi: Boğaçhan Dündaralp
Employer: Lüleburgaz Belediyesi
Yardımcı: Berna Dündaralp, Lale Ceylan
Ana Yüklenici: Dural İnşaat
Structural Project: Yapı Merkezi Prefabrikasyon
Mechanical Project: Süleyman Akım, Akım Mühendislik
Electrical Project: Fahri Kaya, Vis Mühendislik
Photography: Lale Ceylan, Boğaçhan Dündaralp
Project Start Date: 2009
Project End Date: 2010
Construction Start Date: 2011
Construction End Date: 2013
Total Construction Area: 2250 m²