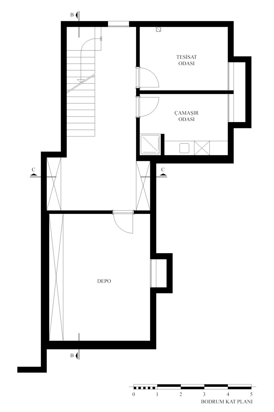
Bodrum Kat Planı
6/14
Paylaş
Resmi Orjinal Boyutunda Göster
HY Evi
Proje Yeri: Narlıdere, İzmir
Proje Ofisi: Arkayın Mimarlık
Proje Tipi: Tek Ev / Villa
Tasarım Ekibi: Tufan Arkayın
İç Mekan Projesi: Tufan Arkayın
Statik Projesi: Ergun Dinçer
Mekanik Projesi: Özan Parlar
Elektrik Projesi: Ali Şenel
Fotoğraf: Tufan Arkayın
Proje Başlangıç Yılı: 2007
Proje Bitiş Yılı: 2007
İnşaat Başlangıç Yılı: 2007
İnşaat Bitiş Yılı: 2008
Arsa Alanı: 6000 m2
Toplam İnşaat Alanı: 400 m2