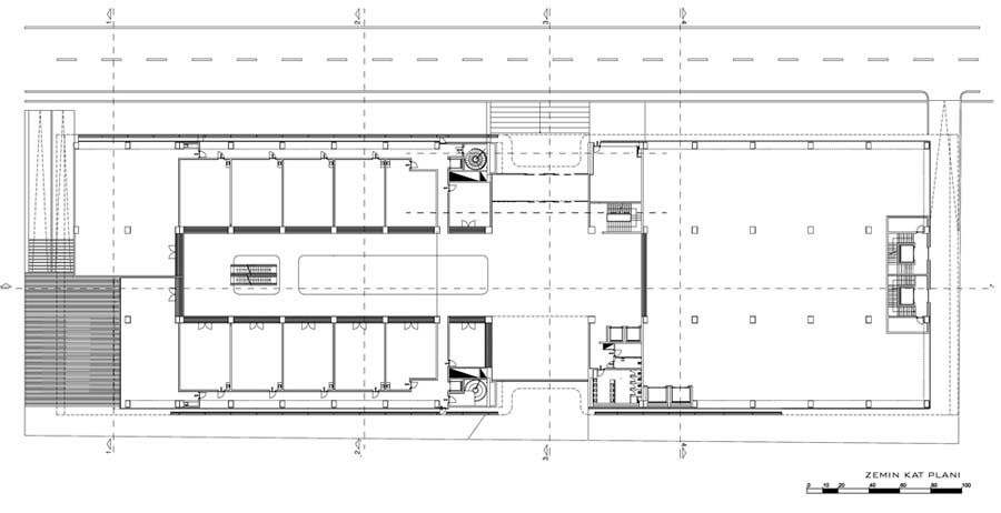
Zemin Kat Planı
23/32
Paylaş
Resmi Orjinal Boyutunda Göster
Prestige Mall
Proje Yeri: İstanbul, Bahçeşehir
Proje Ofisi: Uras X Dilekci Mimarlık
Proje Tipi: Alışveriş Merkezi
Tasarım Ekibi: Durmuş Dilekci, Emir Uras
İşveren: Quinn Group - Şener Turizm
Yardımcı: Aylin Ayvaz, Elvan Çakıt, Fikret Sungay, Handan Akbudak, Salih Küçüktuna, Ufuk Alparslan
Proje Başlangıç Yılı: 2005
Proje Bitiş Yılı: 2006
İnşaat Başlangıç Yılı: 2006
İnşaat Bitiş Yılı: 2007
Arsa Alanı: 5.600 m²
Toplam İnşaat Alanı: 30.000m²