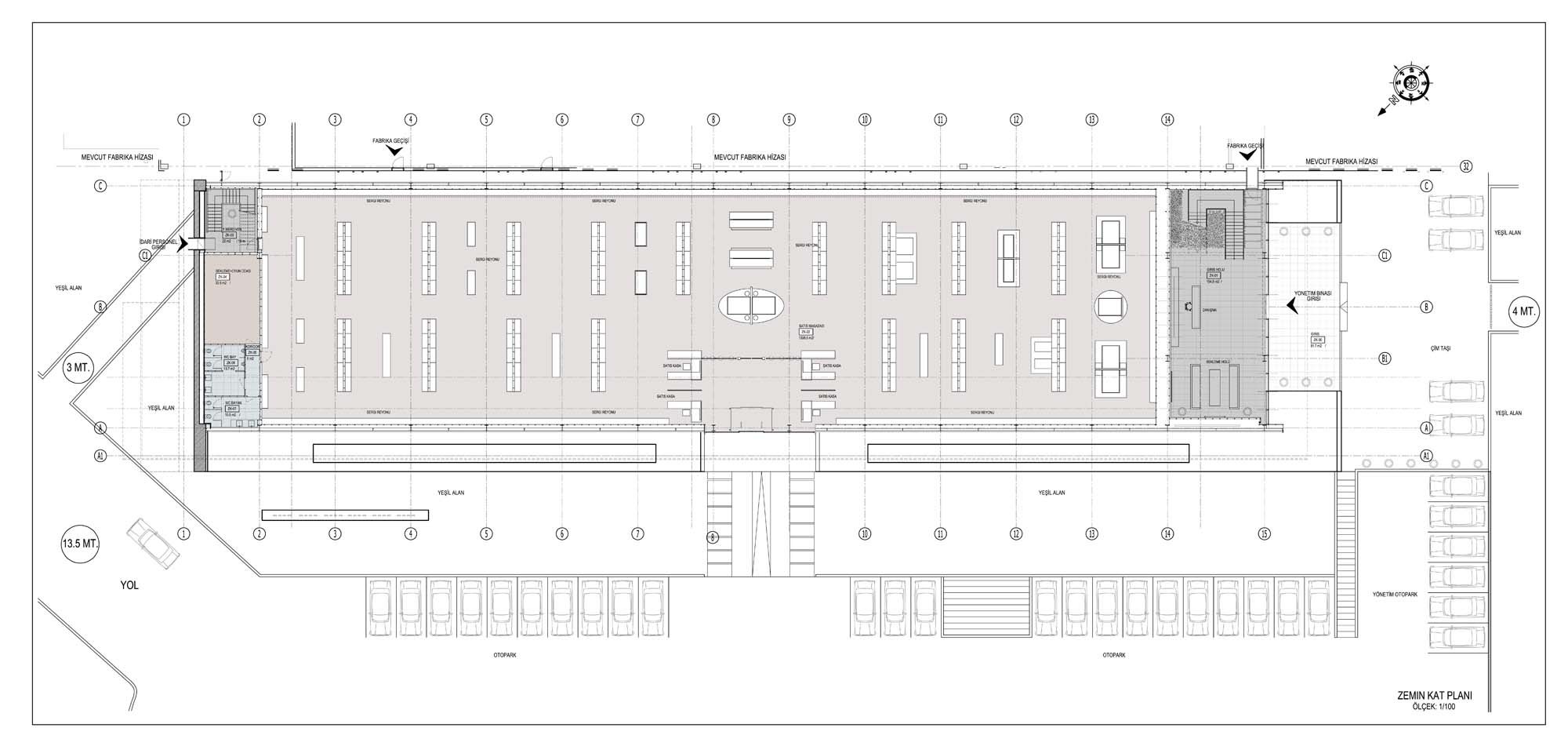
Zemin Kat Planı
9/12
Paylaş
Resmi Orjinal Boyutunda Göster
L Binası
Project Location: Lüleburgaz, Kırklareli
Project Office: Özsoy Mimarlık
Project Type: Offices, Store / Showroom
Tasarım Ekibi: Onur Özsoy, Kıvanç Gürtaş, Yüksel Öztürk
Employer: Zorluteks Pamuklu Dokuma Empirme Sanayii AŞ
Yardımcı: Sezen Dönmez, İpek Özmen, Billur Çelem
Project Start Date: 2006
Project End Date: 2006
Construction Start Date: 2006
Construction End Date: 2007
Building Plot Area: 15.000 m2
Total Construction Area: 3.600 m²