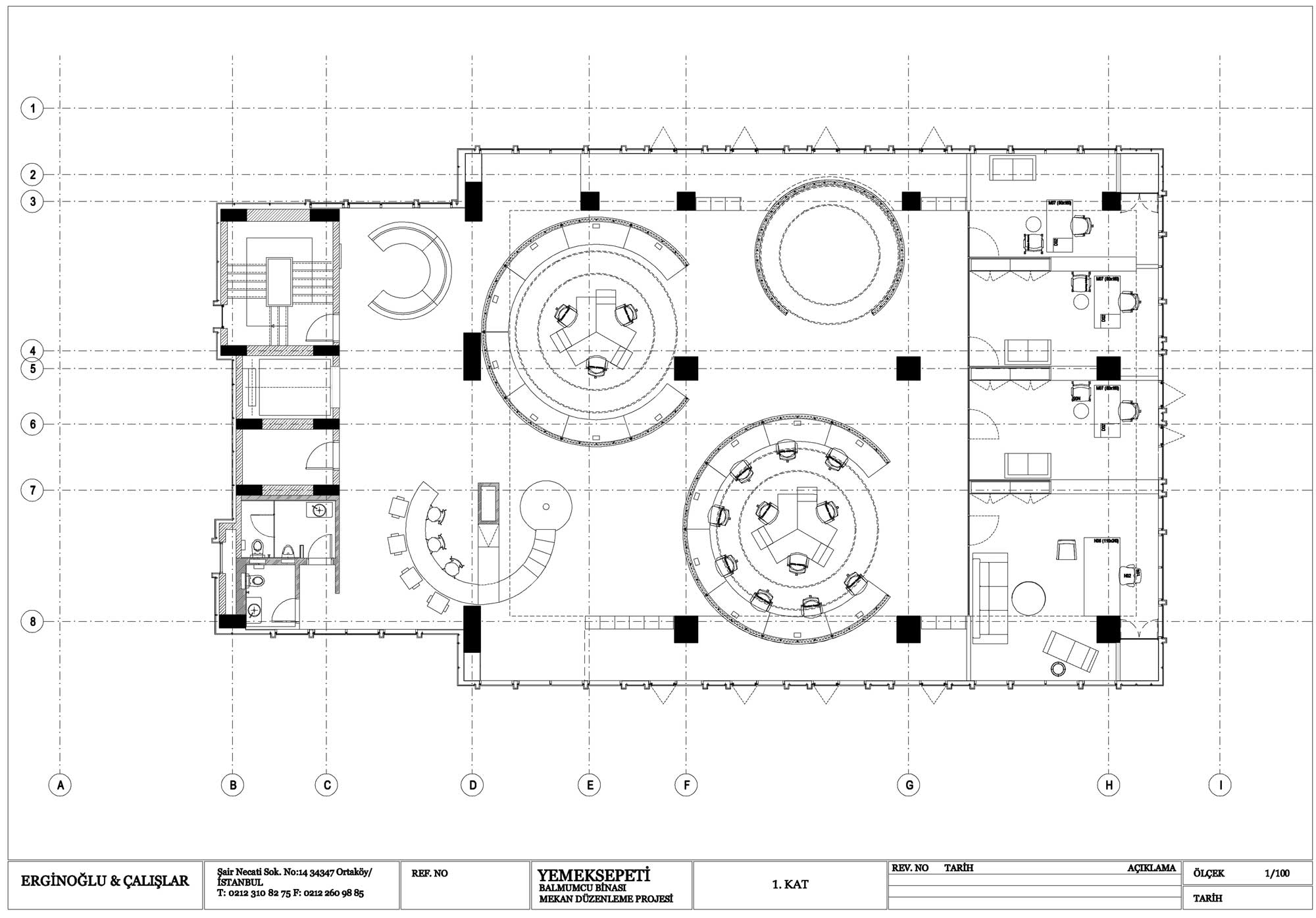
1. Kat Planı
6/7
Paylaş
Resmi Orjinal Boyutunda Göster
Yemeksepeti Kampüs Binası
Project Location: Balmumcu, İstanbul
Project Office: Erginoğlu & Çalışlar Mimarlık
Project Type: Offices
Tasarım Ekibi: Kerem Erginoğlu, Hasan Çalışlar, Onat Över, Emre Erenler, Serhat Özkan, Türkan Yılmaz, Yasemin Hacıkura, Ayşe Selin Gürel, Quentin Gaucher, Ulaş Uğur, Pınar Akkurt
Employer: Yemeksepeti
Yardımcı: İsmail Serdar Demir, Alp Aksoy
Project Start Date: 2011
Project End Date: 2011
Construction Start Date: 2012
Construction End Date: 2012
Vimeo Video Kimliği: 66720139