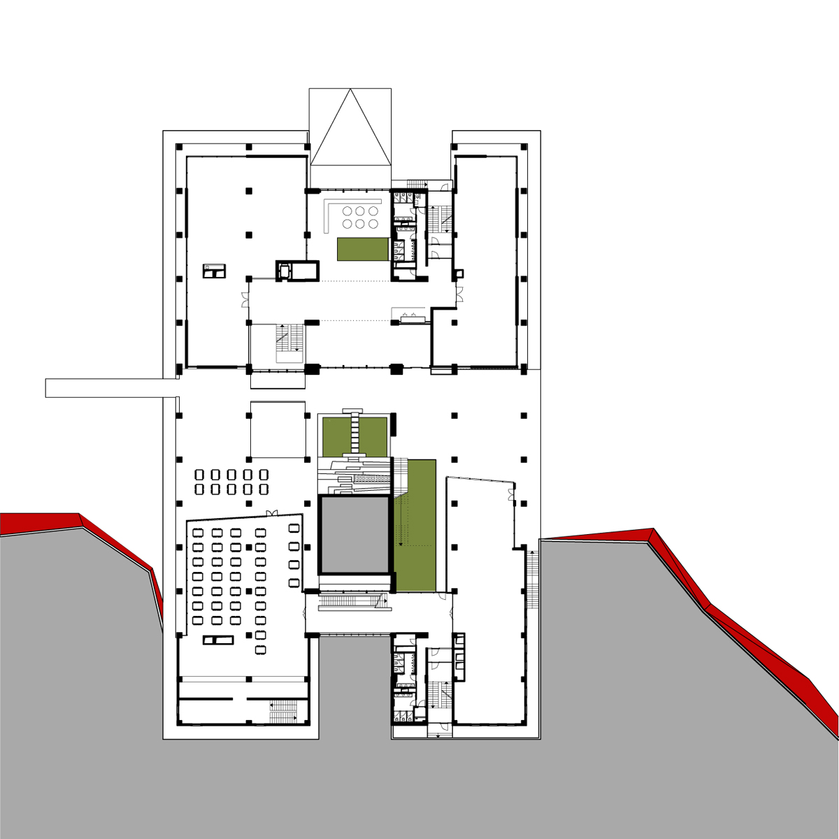
Zemin Kat Planı
25/28
Paylaş
Resmi Orjinal Boyutunda Göster
Galyum Blok
Proje Yeri: Ankara
Proje Ofisi: CAA Studio
Proje Tipi: Ofis
Tasarım Ekibi: Alişan Çırakoğlu
İşveren: Orta Doğu Teknik Üniversitesi Geliştirme Vakfı
Yardımcı: Bilge İldiri, Oral Göktaş, Deniz Çiler Erkan
Proje Başlangıç Yılı: 2005
Proje Bitiş Yılı: 2006
İnşaat Başlangıç Yılı: 2006
İnşaat Bitiş Yılı: 2007
Arsa Alanı: 13.960 m²
Toplam İnşaat Alanı: 14.000 m²