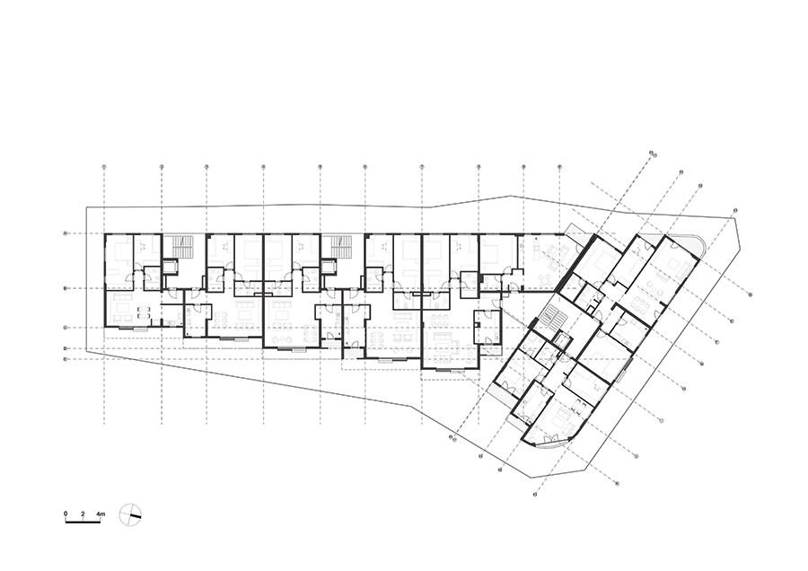
Zemin Kat Planı
24/24
Paylaş
Resmi Orjinal Boyutunda Göster
İz Evler
Proje Yeri: Göktürk, İstanbul
Proje Ofisi: CM Mimarlık
Proje Tipi: Konut Sitesi / Grubu
Tasarım Ekibi: Cem Sorguç
İşveren: Akro Yapı
Yardımcı: Çağrı Küçükay, Barış Kıldiş, Tolga Yağlı, Sezin Ergene, Seda Kayalar
Fotoğraf: Cemal Emden
Proje Başlangıç Yılı: 2009
Proje Bitiş Yılı: 2010, 2012
İnşaat Bitiş Yılı: 2012
Arsa Alanı: 1174 m²
Toplam İnşaat Alanı: 7990 m²