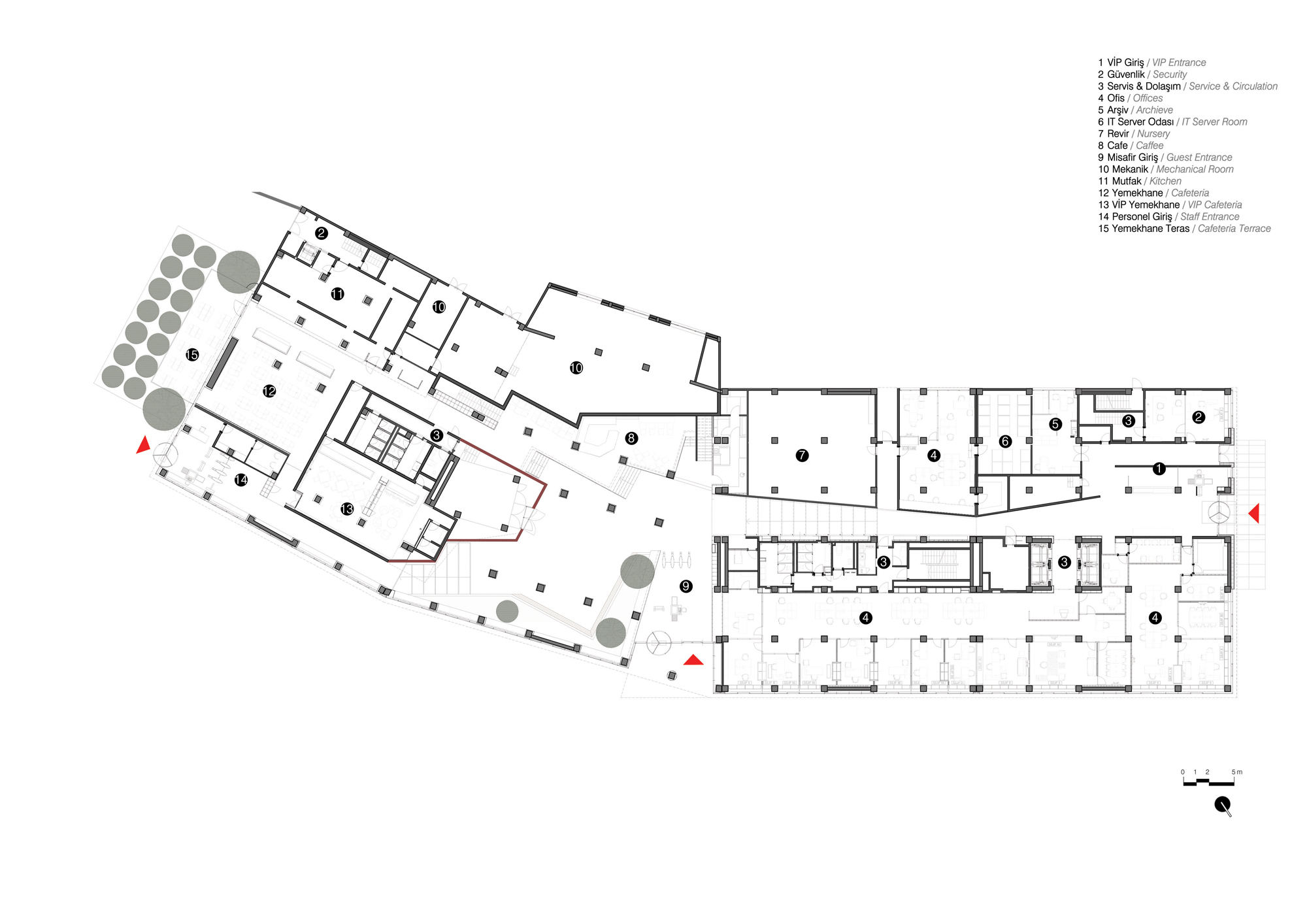
Zemin Kat Planı
35/37
Paylaş
Resmi Orjinal Boyutunda Göster
Doğuş Yönetim
Project Location: Ayazağa, İstanbul
Project Office: CM Mimarlık
Project Type: Offices
Tasarım Ekibi: Cem Sorguç
Employer: Doğuş Holding
Consultant: CWG Consultancy Ltd, Elit Mühendislik
Yardımcı: Tolga Yağlı, Gizem Candemir, Elvan Çakıt, Yıldız Arıcan, Deniz Gezgin, Amina Rezoug
Peyzaj Mimarlığı: Dalokay Tasarım Stüdyosu (DDS)
Interior Architecture: CM Mimarlık
Lighting Project: Nergiz Arifoğlu Lightstyle - Mimari Aydınlatma Tasarımı ve Danışmanlığı
Structural Project: MPI Engineering Project Construction Co. Ltd.
Mechanical Project: Rota Mühendislik
Electrical Project: Orient Research Consulting Engineers
Photography: Cemal Emden
Project Start Date: Ekim 2011
Project End Date: Kasım 2012
Construction Start Date: Kasım 2011
Construction End Date: Kasım 2012
Building Plot Area: 7.270 m²
Total Construction Area: 13.790 m²