13/17
Paylaş
Resmi Orjinal Boyutunda Göster
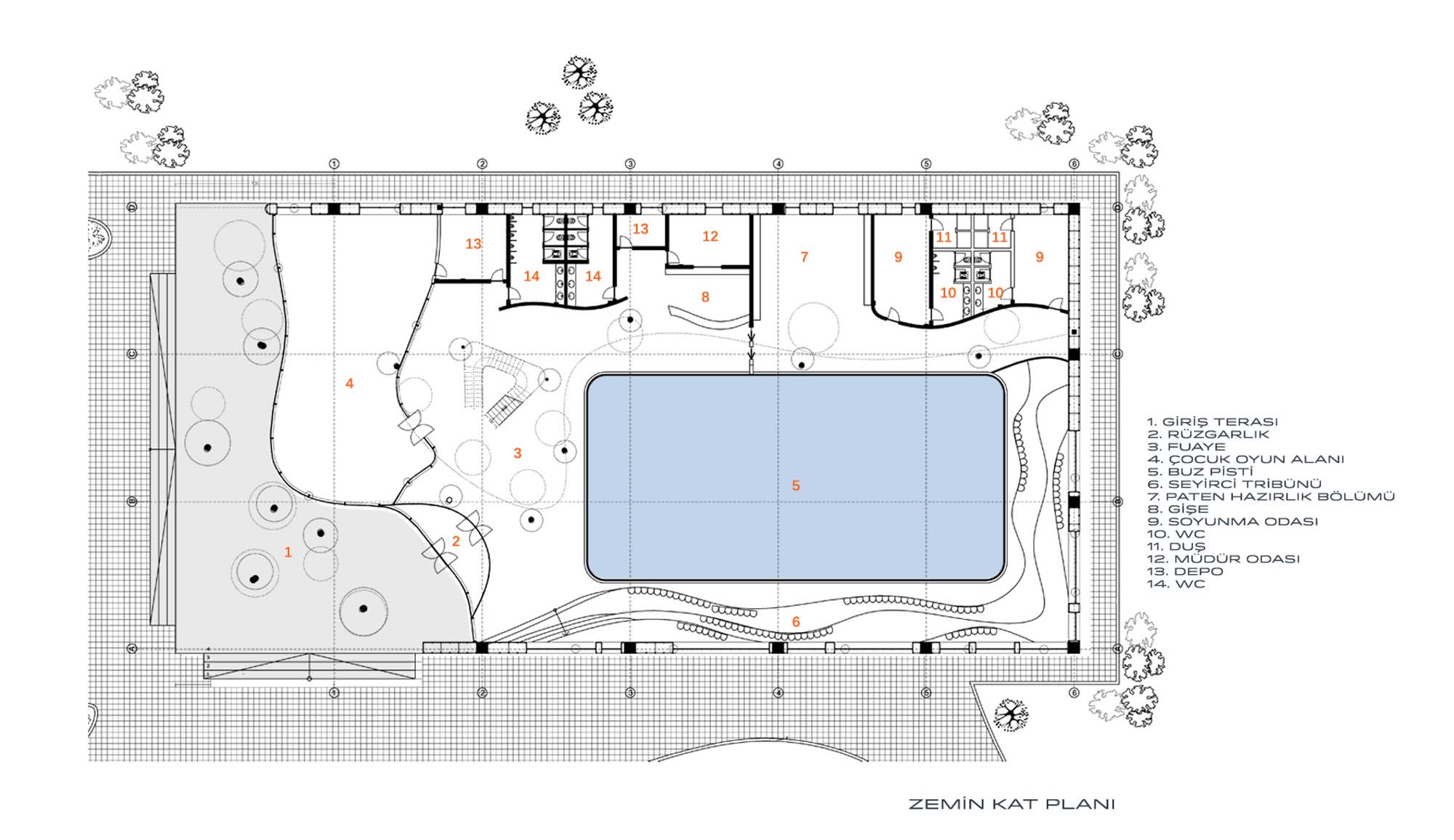
Kayseri Buz Pisti
Proje Yeri: Kayseri
Proje Ofisi: Bahadır Kul Architects
Proje Tipi: Spor Salonu
Tasarım Ekibi: Bahadır Kul
İşveren: Kayseri Büyükşehir Belediyesi
İç Mekan Projesi: Bahadır Kul Architects
Aydınlatma Projesi: Bahadır Kul Architects
Statik Projesi: Emre İstikam
Mekanik Projesi: Esra Mühendislik
Elektrik Projesi: Sıla Mühendislik
Fotoğraf: Bahadır Kul Architects
Proje Başlangıç Yılı: 2009
Proje Bitiş Yılı: 2011
İnşaat Başlangıç Yılı: 2011
İnşaat Bitiş Yılı: 2012
Arsa Alanı: 10.000 m²
Toplam İnşaat Alanı: 2.600 m²