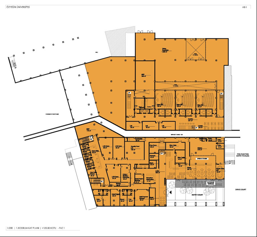
Bodrum Kat Planı 1
14/17
Paylaş
Resmi Orjinal Boyutunda Göster
Özyeğin Üniversitesi İşletme Fakültesi
Project Location: Çekmeköy, İstanbul
Project Office: RMJM, BG Architects
Tasarım Ekibi: Roger Klein, Bülent Ergin Güngör, Nuran Eryeler, Hakan Aliç, Emre Gürsoy, Barış Başat
Employer: Özyeğin Üniversitesi
Yardımcı: Şila Siva, Ece Şeref, Veciye Öztürk, Eylem Yılmaz, Funda Doğru, Ergün Kutlutürk
Structural Project: Emir Mühendislik, DS Mimarlık
Mechanical Project: Civa Mühendislik
Electrical Project: Latek İnşaat Elektrik Proje
Photography: Koral Oral
Project Start Date: 2010
Project End Date: 2011
Construction Start Date: 2011
Construction End Date: 2012
Building Plot Area: 72 100 m²
Total Construction Area: 23 780 m²