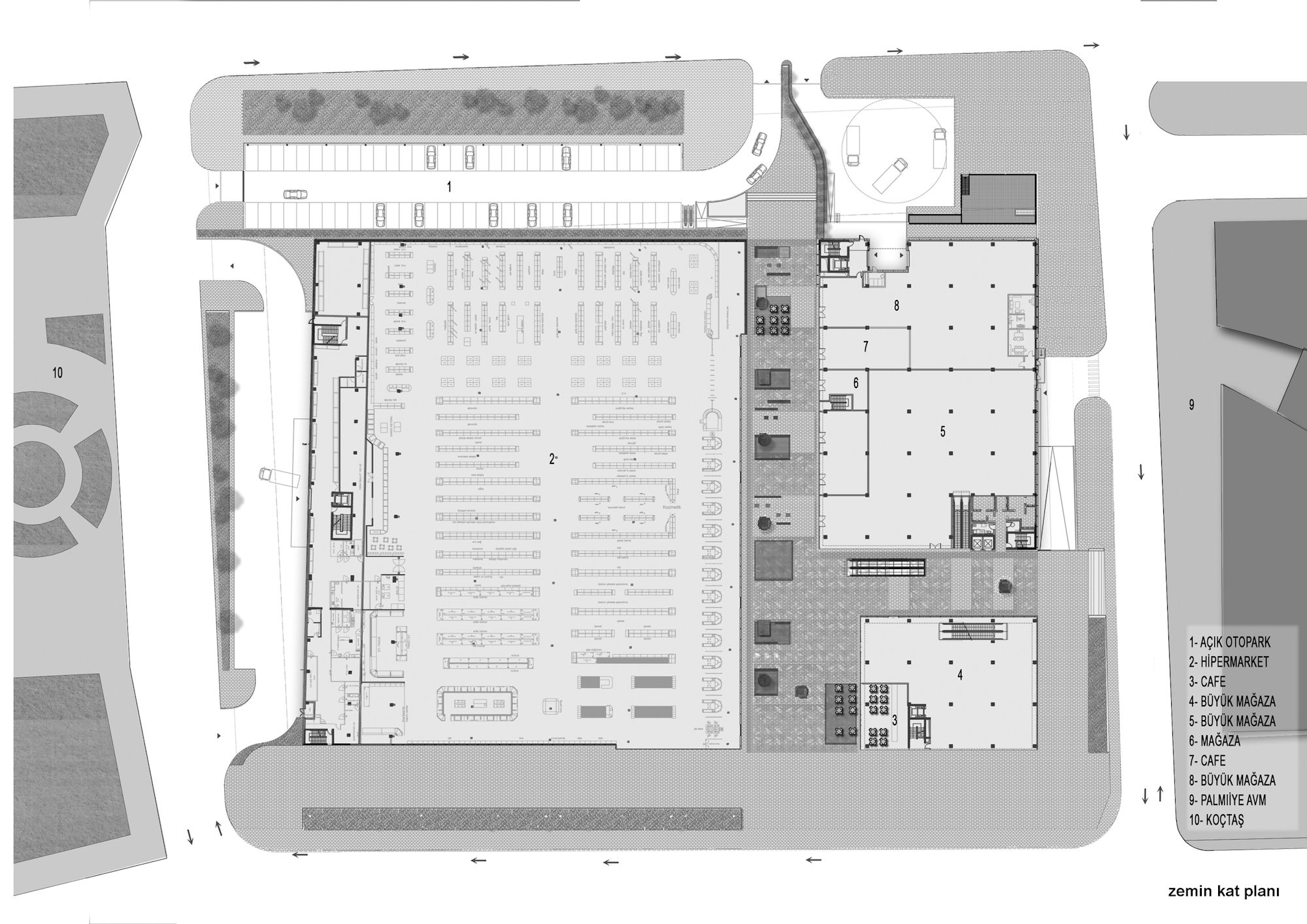
Plan
17/22
Paylaş
Resmi Orjinal Boyutunda Göster
Asmaçatı Alışveriş ve Buluşma Noktası
Fotoğraflar: Thomas Mayer
Proje Yeri: İzmir
Proje Ofisi: Tabanlıoğlu Mimarlık
Proje Tipi: Alışveriş Merkezi
Tasarım Ekibi: Melkan Gürsel, Murat Tabanlıoğlu
İşveren: ARK İnşaat
Yardımcı: Murat Cengiz, Çağrı Akay, Seray Öztürk, Efe Öner, Fulya Ayşe Seviğ, Selen Ak Avuçlu, Gökhan Çatıkkaş
Ana Yüklenici: ARK İnşaat
Peyzaj Mimarlığı: Paska İnşaat & Peyzaj
İç Mekan Projesi: Tabanlıoğlu Mimarlık
Statik Projesi: Emir Mühendislik
Mekanik Projesi: Elmeksan Mekanik
Elektrik Projesi: ERK Proje Mühendislik
Proje Başlangıç Yılı: 2009
Proje Bitiş Yılı: 2011
İnşaat Başlangıç Yılı: 2010
İnşaat Bitiş Yılı: 2011
Arsa Alanı: 22.763 m2
Toplam İnşaat Alanı: 41.450 m2