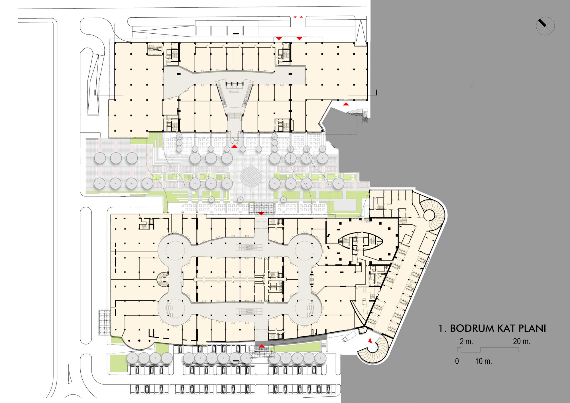
1. Bodrum Kat Planı
29/33
Paylaş
Resmi Orjinal Boyutunda Göster
Armada Büyüme Projesi
Project Location: Ankara, Söğütözü
Project Office: A Tasarım Mimarlık
Project Type: Shopping Mall
Tasarım Ekibi: Ali Osman Öztürk
Employer: Söğütözü İnşaat İşletme AŞ
Consultant: Salih Bezci
Yardımcı: Niyazi Ayvaz, İrem Aker Büyükkalay, Aslı Altıntaş, Nil Ece İnce, Harun Karabulut, Tuncay Kaya, Erhan Karahaliloğulları, Eser Çengel, Canan Karakaya, Süreyya Atalay, Filiz Cingi Yurdakul
Ana Yüklenici: Söğütözü İnşaat İşletme AŞ
Peyzaj Mimarlığı: Promim Çevre Düzenleme, Kentsel Tasarım
Interior Architecture: A Tasarım Mimarlık
Projcet Manager: İrem Aker Büyükkalay
Structural Project: Yüksek Proje İnşaat
Mechanical Project: Metta Mühendislik
Electrical Project: Akay Mühendislik
Plumbing Project: Metta Mühendislik
Project Start Date: 2004
Project End Date: 2012
Construction Start Date: 2010
Construction End Date: 2012
Building Plot Area: 10.043 m2
Total Construction Area: 80.000 m²