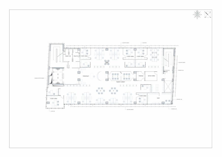
Plan
40/45
Paylaş
Resmi Orjinal Boyutunda Göster
Varyap Meridian H Blok
Proje Yeri: Ataşehir, İstanbul
Proje Ofisi: RMJM, Dome + Partners, MTF Proje (Mimari Tasarım Fikirleri)
Proje Tipi: Ofis
Tasarım Ekibi: Derya Ekim Öztepe, Ozan Öztepe, Deniz Ekim Çubukçu
İşveren: Varyap
Danışman: CWG
Yardımcı: Betül Karanfil
Peyzaj Mimarlığı: DS Mimarlık
Statik Projesi: Yapı Teknik Mühendislik
Mekanik Projesi: GN Mühendislik
Elektrik Projesi: Esan Mühendislik
Fotoğraf: Ozan Öztepe
Proje Başlangıç Yılı: Aralık 2010, Şubat 2011
İnşaat Başlangıç Yılı: Şubat 2011
İnşaat Bitiş Yılı: Temmuz 2012
Arsa Alanı: 6.000 m²
Toplam İnşaat Alanı: 10.000 m²