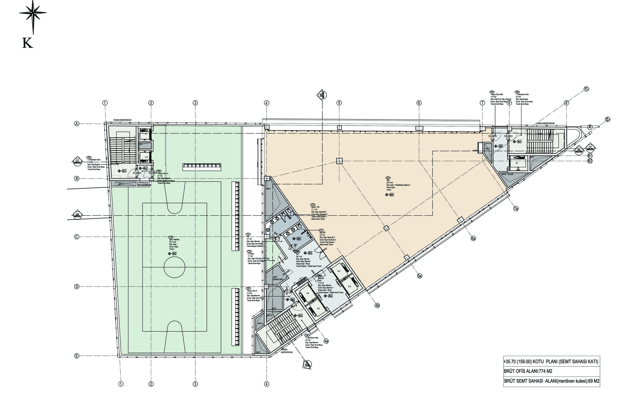
Semt Sahası
13/14
Paylaş
Resmi Orjinal Boyutunda Göster
Metrocity İş ve Eğlence Merkezi
Fotoğraflar: Gürkan Akay
Project Location: Levent, Beşiktaş, İstanbul
Project Office: Norm Mimarlık
Project Type: Offices, Entertaintment Center
Tasarım Ekibi: Ahmet Tercan, Esin Tercan, Nedim Erdal Özyurt
Architectural Project Team: Norm Mimarlık
Employer: KA Gayrimenkul Geliştirme Yatırım
Consultant: Savcı Eker
Yardımcı: Aslıhan Kemer, Sinem Serhatlı, Serhan Aydoğdu
Ana Yüklenici: KA Gayrimenkul Geliştirme Yatırım
Peyzaj Mimarlığı: Norm Mimarlık
Interior Architecture: Norm Mimarlık
Projcet Manager: Ahmet Tercan
Lighting Project: Norm Mimarlık
Structural Project: MPI Mühendislik
Mechanical Project: Setta Mühendislik
Electrical Project: ERK Proje Mühendislik, ELSAN Elektrik
Project Start Date: 2004
Project End Date: 2010
Construction Start Date: 2010
Construction End Date: 2012
Building Plot Area: 9.300 m²
Total Construction Area: 21.000 m²