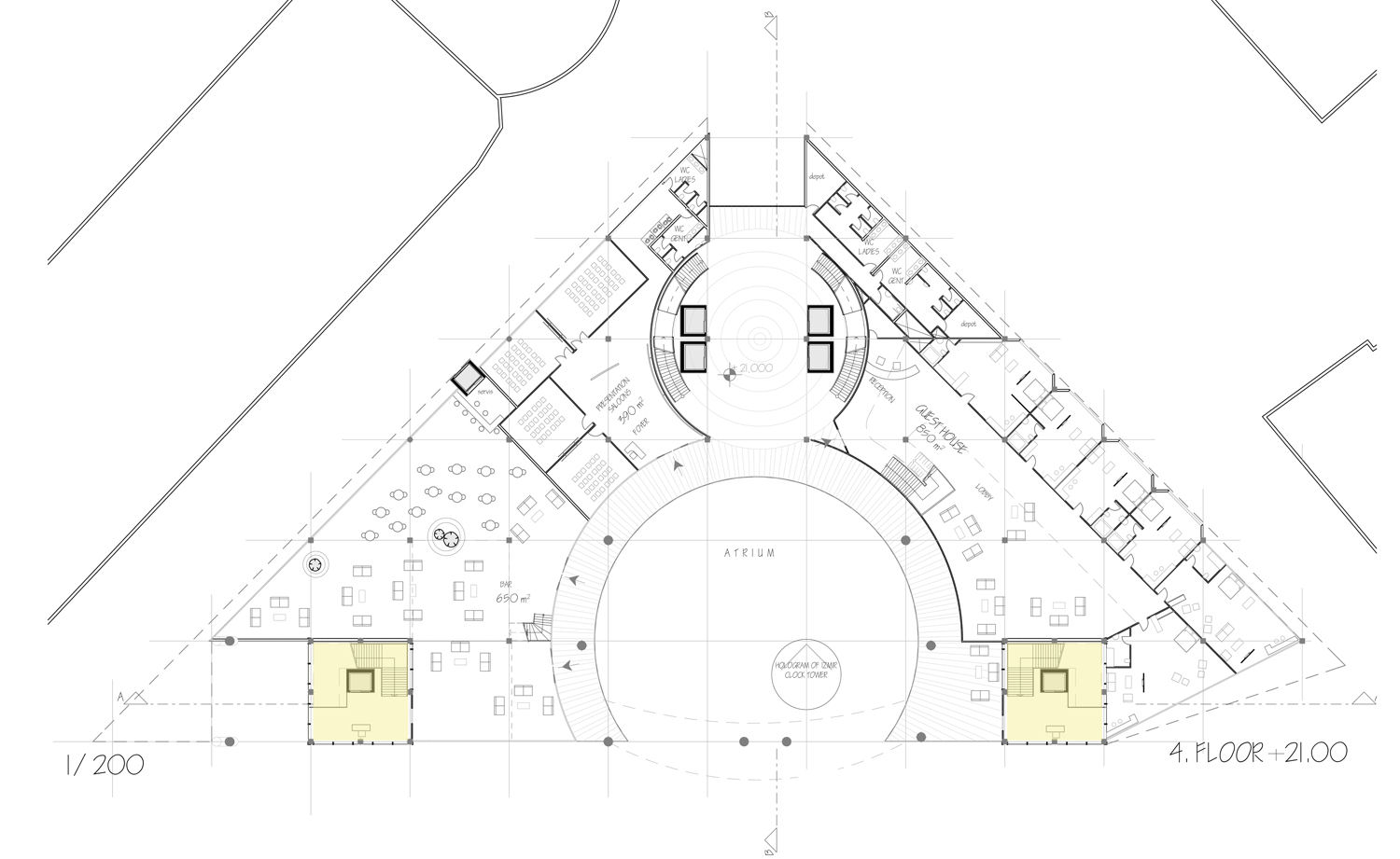
4. Kat Planı
16/23
Paylaş
Resmi Orjinal Boyutunda Göster
Cihan Atlıman
Tasarım Ekibi: Cihan Atliman