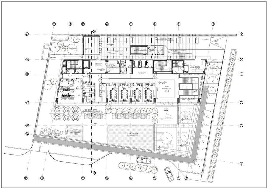
zemin-kat-plani-toplanti
37/48
Paylaş
Resmi Orjinal Boyutunda Göster
Radisson Blu Asia Otel
Fotoğraflar: Duygu Arseven-Kağan Erk
Proje Yeri: Ataşehir, İstanbul
Proje Ofisi: Metex Design Group
Proje Tipi: Otel / Motel
Proje Tipi Grubu: Konaklama
Tasarım Ekibi: Sinan Kafadar, Kağan Erk
İşveren: Ant Yapı
Yardımcı: Burcu Arkut, Günay Şahin, İdil Aygünal, İpek Bankeroğlu, Merve Bulut, Ozan Falay, Selen Gürsoy, Özgür Karakılıç
Peyzaj Mimarlığı: Hande Aydıngün Peyzaj Tasarım Uygulama ve Danışmanlık
İç Mekan Projesi: Metex Design Group
Statik Projesi: MPI Mühendislik
Mekanik Projesi: MEP Mühendislik
Elektrik Projesi: Arma Mühendislik
Fotoğraf: Duygu Arseven, Kağan Erk
Proje Başlangıç Yılı: Temmuz 2009
Proje Bitiş Yılı: Şubat 2012
İnşaat Başlangıç Yılı: Aralık 2010
İnşaat Bitiş Yılı: Mayıs 2012
Arsa Alanı: 2.224 m²
Toplam İnşaat Alanı: 20.120 m²