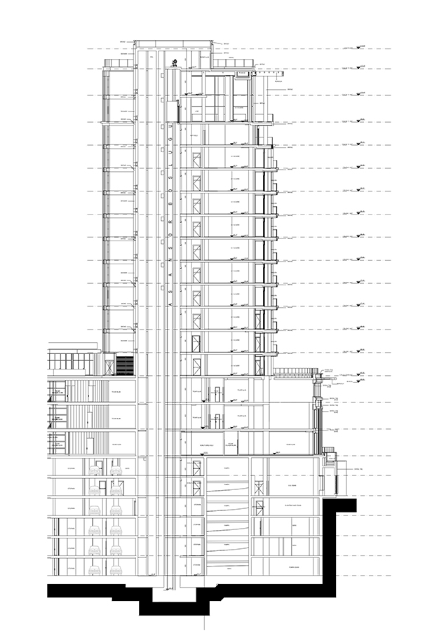
C-blok-kesit
23/26
Paylaş
Resmi Orjinal Boyutunda Göster
Maçka Armani
Project Location: Maçka, Beşiktaş, İstanbul
Project Office: Metex Design Group
Project Type: Housing Complex
Tasarım Ekibi: Sinan Kafadar, Kağan Erk, Hüray Erk, Yalın Çağatay
Employer: Astaş Gayrimenkul, Bemes Yapı İnşaat
Consultant: Arup
Yardımcı: Erdem Emre Doğan, Gülsüm Aykut Akgün, Fatih Köstem, Sezin Altıncezve, Marıo Marıno, Faik Mercan
Peyzaj Mimarlığı: BGM Design
Interior Architecture: Armani Casa, Metex Design Group
Projcet Manager: Arup
Lighting Project: Studio Dekor
Mechanical Project: Arup
Electrical Project: Arup
Project Start Date: 2009
Project End Date: 2012
Construction Start Date: 2010
Building Plot Area: 7300 m²
Total Construction Area: 54.000 m²