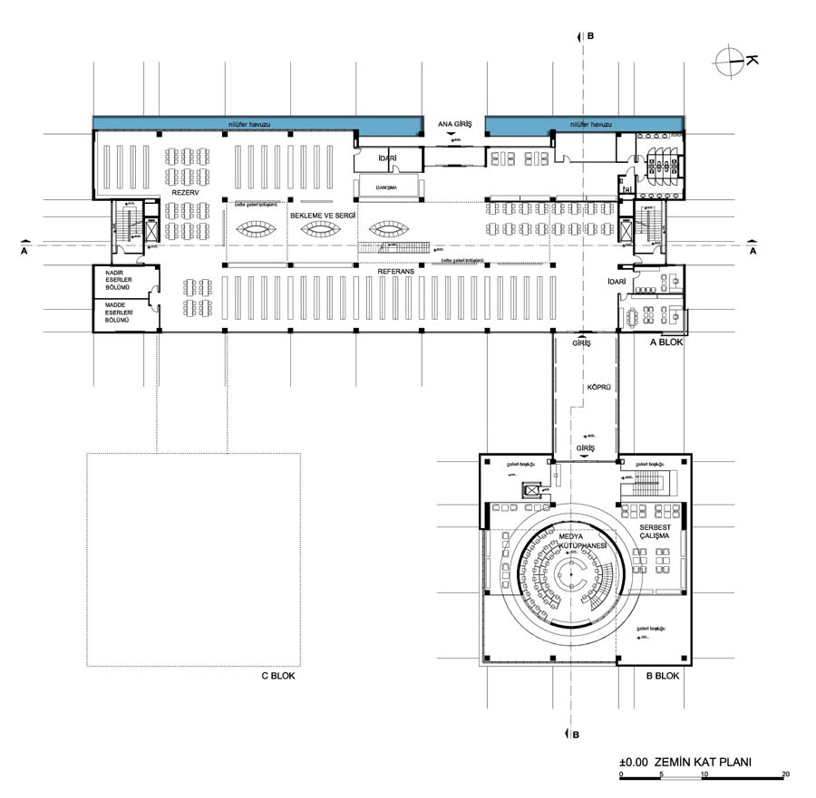
Zemin Kat Planı
3/4
Paylaş
Resmi Orjinal Boyutunda Göster
Batman Üniversitesi Kütüphanesi
Proje Yeri: Batman
Proje Tipi: Kütüphane, Yüksek Öğretim Yapısı
Tasarım Ekibi: Celal Abdi Güzer, Lale Özgenel
İşveren: Batman Üniversitesi Yapı İşleri ve Teknik Daire Başkanlığı
Yardımcı: Ayşegül Akçay, Hülya Bakkaloğlu
Statik Projesi: Mustafa Demirci
Mekanik Projesi: Harun Saçmalı
Elektrik Projesi: Naim Toygar
Proje Başlangıç Yılı: 2010
Proje Bitiş Yılı: 2010
İnşaat Başlangıç Yılı: 2012
Toplam İnşaat Alanı: 7.510 m²