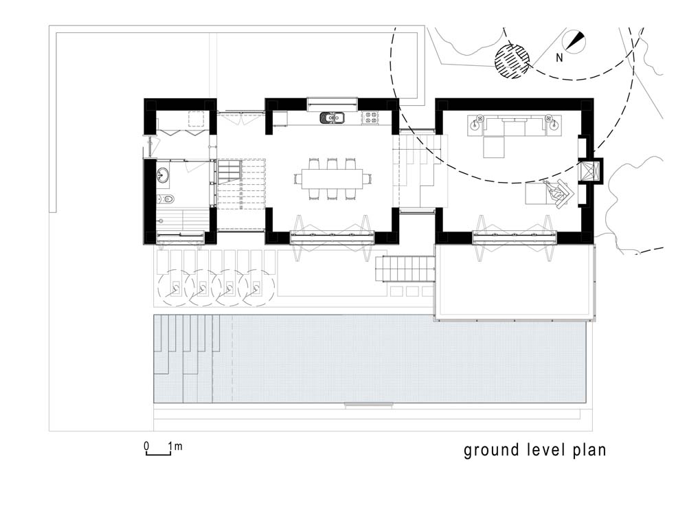
Plan
9/10
Paylaş
Resmi Orjinal Boyutunda Göster
Ö Evi
Proje Yeri: Muğla
Proje Ofisi: Erginoğlu & Çalışlar Mimarlık
Proje Tipi: Tek Ev / Villa
Tasarım Ekibi: Kerem Erginoğlu, Hasan Çalışlar
Yardımcı: Armağan Ekiz Bayık, Sinan Gümrükçüoğlu, Defne Bozkurt
Proje Başlangıç Yılı: 2005
Proje Bitiş Yılı: 2005
İnşaat Başlangıç Yılı: 2006
İnşaat Bitiş Yılı: 2006
Toplam İnşaat Alanı: 160