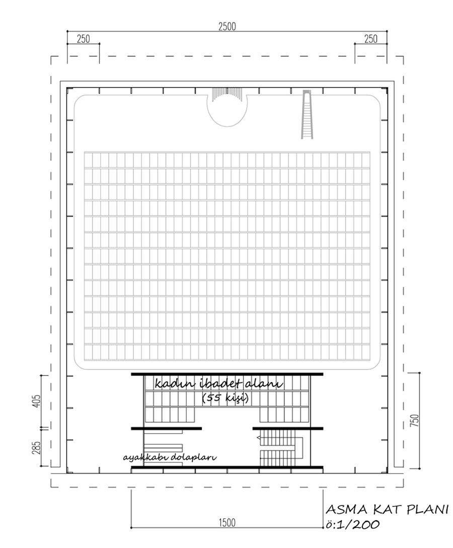
Asma Kat Planı
12/16
Paylaş
Resmi Orjinal Boyutunda Göster
Kutlu İnanç Bal, Hakan Evkaya
Proje Ofisi: İkikerebir
Proje Tipi: Cami / Mescit
Proje Tipi Grubu: Eşdeğer Ödül
Tasarım Ekibi: Kutlu İnanç Bal, Hakan Evkaya