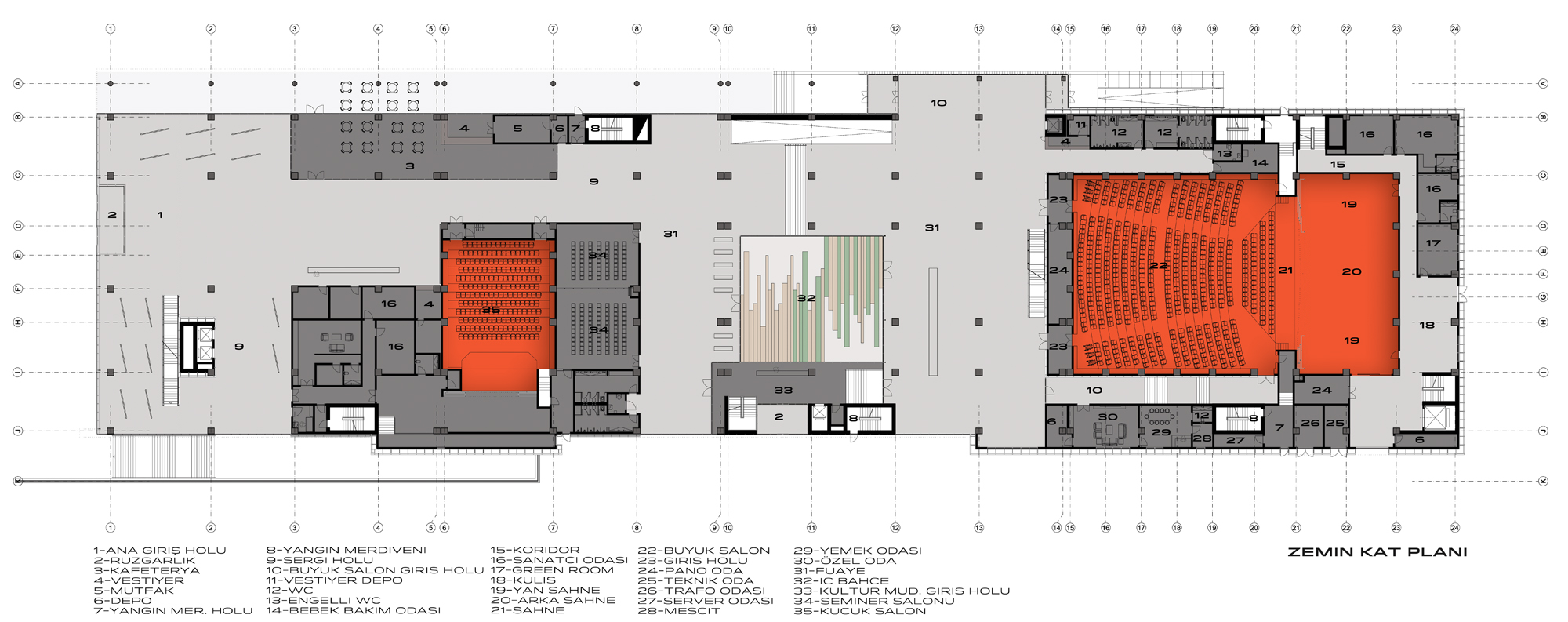
Zemin Kat Planı
6/9
Paylaş
Resmi Orjinal Boyutunda Göster
Neşet Ertaş Kültür Merkezi
Proje Yeri: Kırşehir
Proje Ofisi: Bahadır Kul Architects
Proje Tipi: Kültür Merkezi
Proje Tipi Grubu: Kültür
Tasarım Ekibi: Bahadır Kul, Burçak Kızıltaş, İbrahim Anıl Biçer, Pelin Üye, Cennet Dayı, Bekir Aşçıoğlu, Samprie Chatziahmet
İşveren: Kırşehir Belediyesi
Statik Projesi: Gökhan Başbuğ
Mekanik Projesi: Fatih Karaman
Elektrik Projesi: Sistemli Elektrik, Fuat Özpamuk
Proje Başlangıç Yılı:  2012
Proje Bitiş Yılı:  2012
İnşaat Başlangıç Yılı:  2012
Arsa Alanı: 10.000 m²
Toplam İnşaat Alanı: 18.000 m²