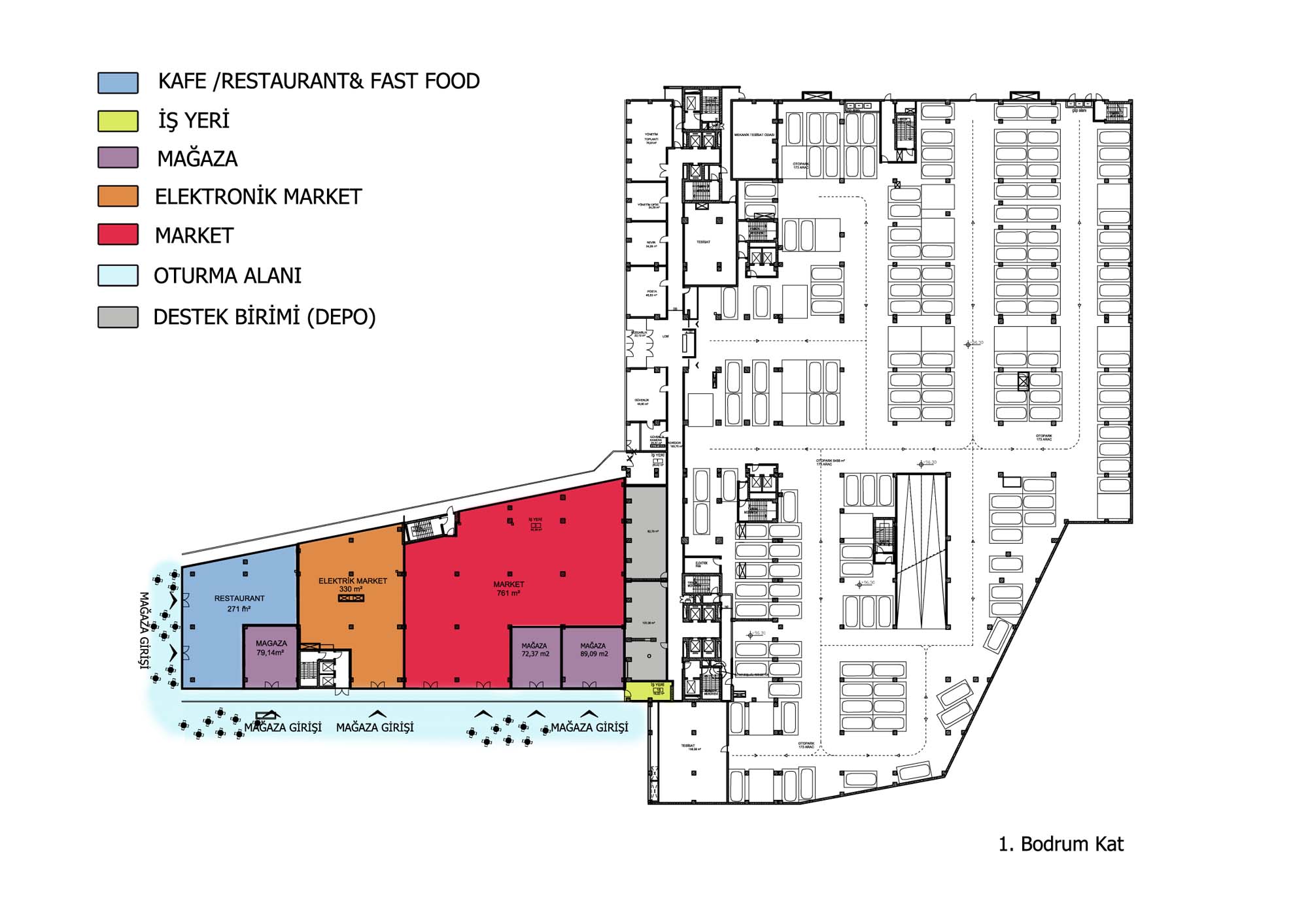
Bodrum Kat Planı
11/14
Paylaş
Resmi Orjinal Boyutunda Göster
Dumankaya Vizyon
Proje Yeri: İstanbul
Proje Ofisi: TAGO Mimarlık
Proje Tipi: Ofis, Konut Sitesi / Grubu
Tasarım Ekibi: Gökhan Aktan Altuğ
İşveren: Dumankaya İnşaat
Yardımcı: Müge Eker Eryayar, Mevlüt Duymaz, Hakan Özbek, Emre Kurbak, Fuat Taşkıranoğlu
Peyzaj Mimarlığı: Sami Ata Turak
Statik Projesi: Parlar Mühendislik
Mekanik Projesi: ABC Mekanik
Elektrik Projesi: Atlantis Proje
İnşaat Bitiş Yılı: 2011
Toplam İnşaat Alanı: 69.770 m2