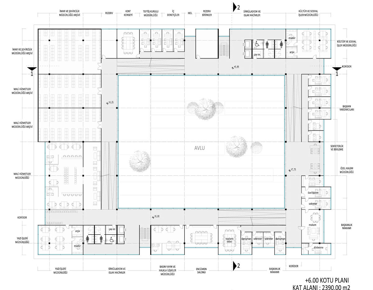
+6.00 Kotu Planı
12/16
Paylaş
Resmi Orjinal Boyutunda Göster
Katılımcı 3, Uşak Belediyesi Hizmet Binası Yarışması
Proje Ofisi: İkikerebir
Proje Tipi: Belediye Hizmet Binası
Proje Tipi Grubu: Katılımcı
Tasarım Ekibi: Hakan Evkaya, Kutlu İnanç Bal, Cengiz Gündemir
Yardımcı: Hikmet Alim, Mehmet Yılmaz