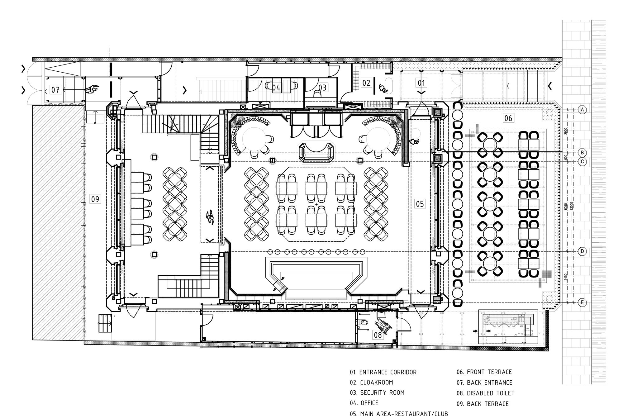
Zemin Kat Planı
16/16
Paylaş
Resmi Orjinal Boyutunda Göster
GQ Bar Turkey
Fotoğraflar: Ali Bekman
Proje Yeri: İstanbul, Etiler
Proje Ofisi: No Architect
Proje Tipi: Restoran / Kafe / Bar
Proje Tipi Grubu: Ticari
Tasarım Ekibi: Canan Taşcı
Ana Yüklenici: Yoo Mimarlık
Statik Projesi: SOM Mühendislik
Proje Başlangıç Yılı: Ekim 2012
Proje Bitiş Yılı: Şubat 2013
İnşaat Bitiş Yılı: 2013
Arsa Alanı: 700 m2
Toplam İnşaat Alanı: 700 m2