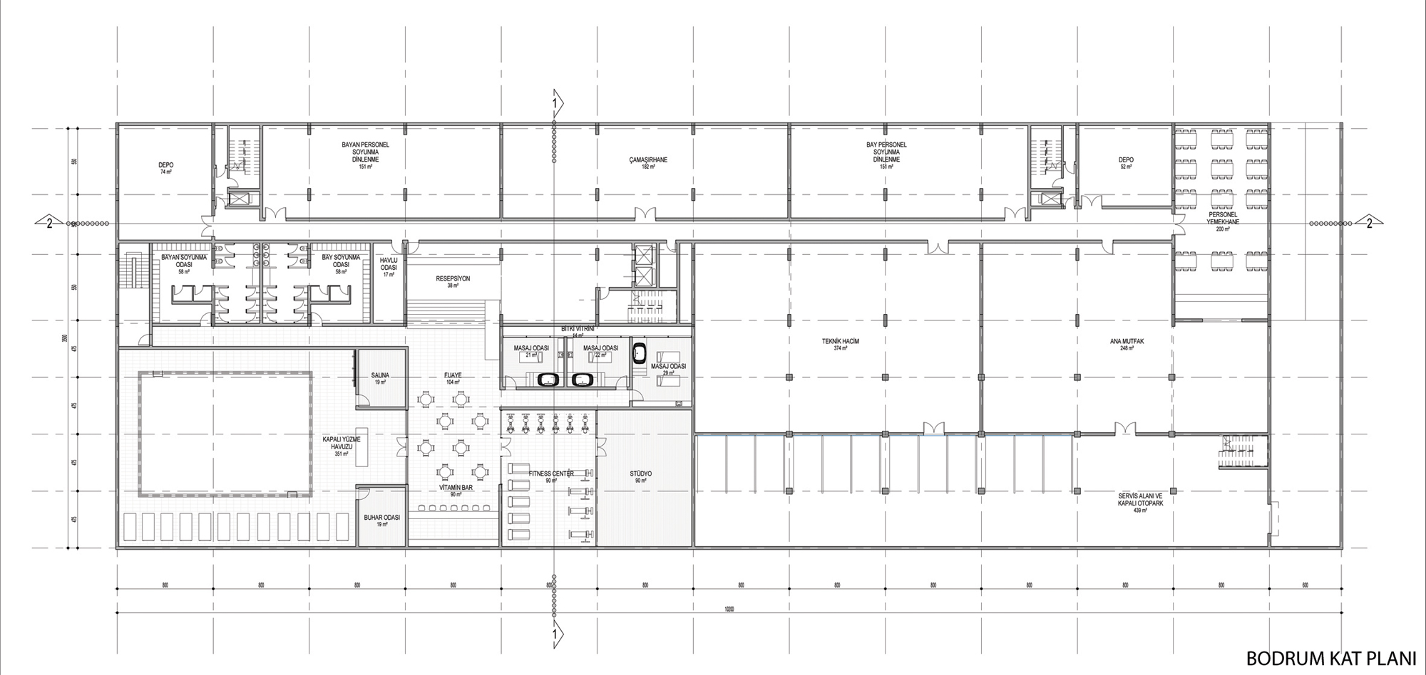
Bodrum Kat Planı
5/10
Paylaş
Resmi Orjinal Boyutunda Göster
Kars Sarıkamış Kayak Oteli
Proje Yeri: Kars, Sarıkamış
Proje Ofisi: ACE Mimarlık
Proje Tipi: Otel / Motel
Proje Tipi Grubu: Konaklama
Tasarım Ekibi: Orçun Ersan, Görkem Rabia Kanat, Cansın Kunter
İşveren: Mina Grup
Yardımcı: Kübra Koca
Proje Başlangıç Yılı: Ocak 2013
Arsa Alanı: 8.634 m2
Toplam İnşaat Alanı: 13.713 m2