22/22
Paylaş
Resmi Orjinal Boyutunda Göster
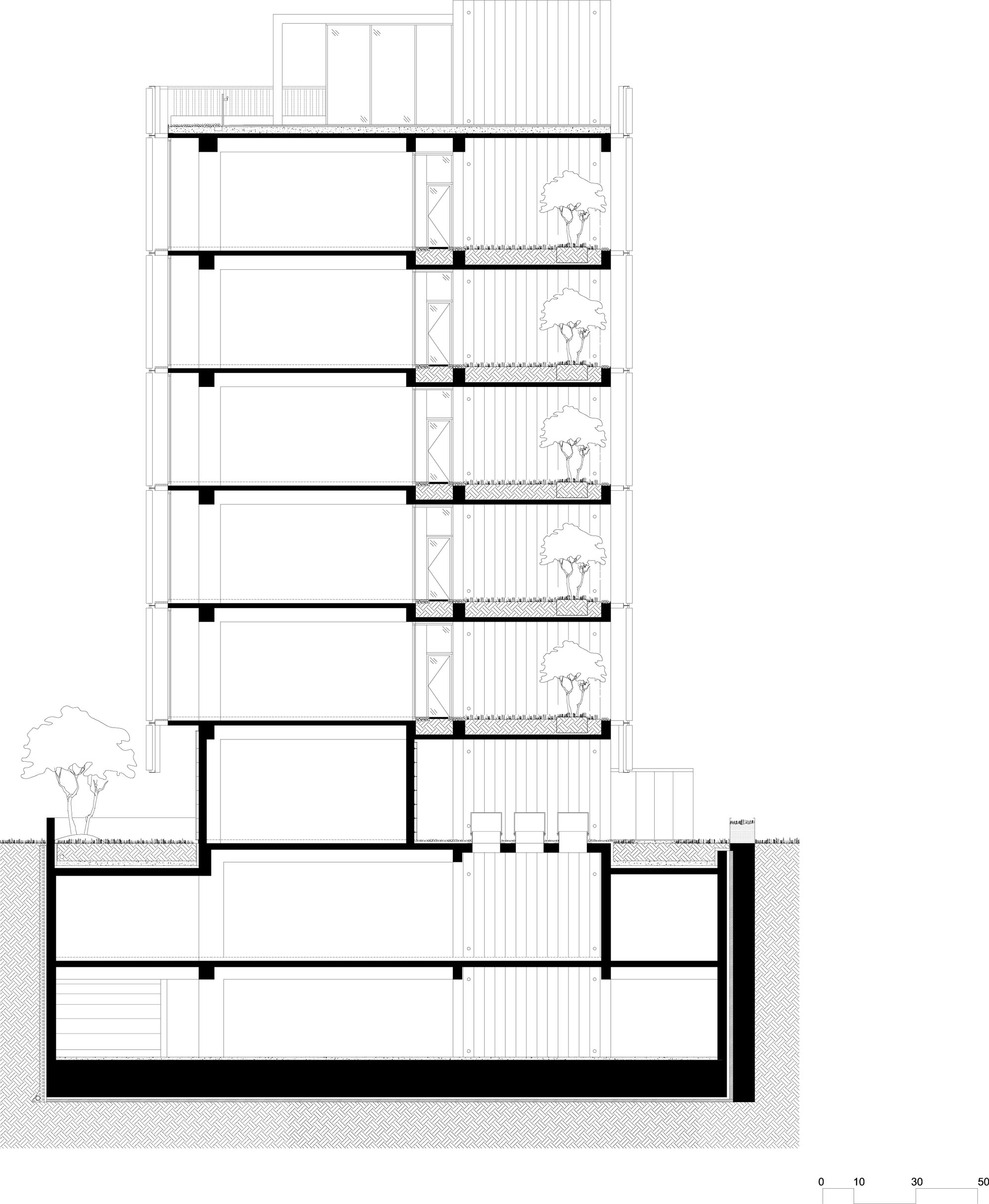
Ataşehir Ofis
Project Location: Ataşehir, İstanbul
Project Office: kpm Kerem Piker Mimarlık
Project Type: Offices
Tasarım Ekibi: Kerem Piker
Employer: Gündüz Mühendislik, Sarıyıldız İnşaat
Yardımcı: Yelta Köm, Cansu Cürgen
Structural Project: Kuram Mühendislik
Project Start Date: 2011
Construction Start Date: 2013
Total Construction Area: 3,000 m²