Plan
21/24
Paylaş
Resmi Orjinal Boyutunda Göster
Katılımcı 3
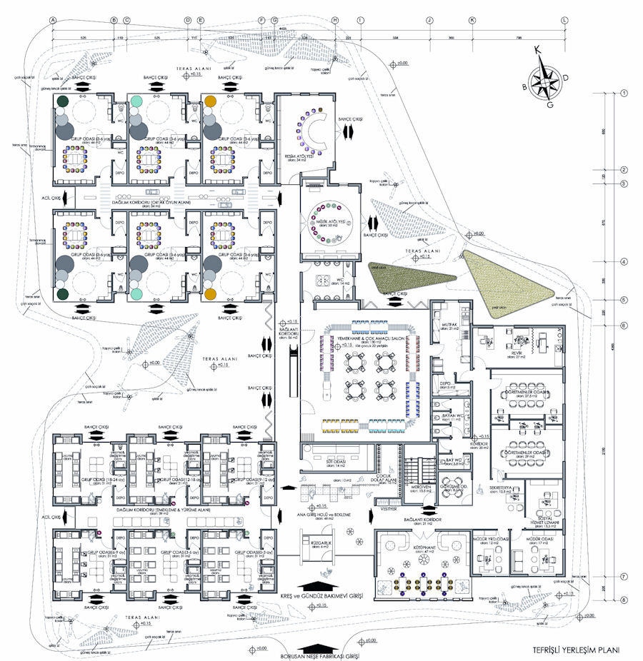
Project Office: mimaristudio
Project Type: Preschool / Nursery
Proje Tipi Grubu: Katılımcı
Tasarım Ekibi: Ayça Akkaya Kul, Önder Kul, Kürşad Hazer