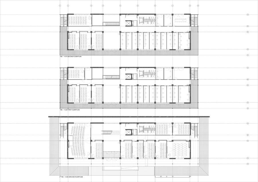
Y06 Plan
20/23
Paylaş
Resmi Orjinal Boyutunda Göster
Santralistanbul Eğitim Yapıları
Project Location: İstanbul
Project Office: Nevzat Sayın Mimarlık Hizmetleri (NSMH), EAA-Emre Arolat Architecture
Project Type: Higher Education Building
Proje Tipi Grubu: Eğitim
Tasarım Ekibi: Nevzat Sayın, Emre Arolat
Employer: İstanbul Bilgi Üniversitesi
Yardımcı: Sibel Özdoğan, İbrahim Eyüp, Onur Eroğuz
Ana Yüklenici: Data İnşaat
Peyzaj Mimarlığı: TRafo-Mimarlar
Projcet Manager: Turner Pro-ge
Structural Project: Tuncel Mühendislik
Mechanical Project: Dinamik Proje Mühendislik
Electrical Project: ENKOM