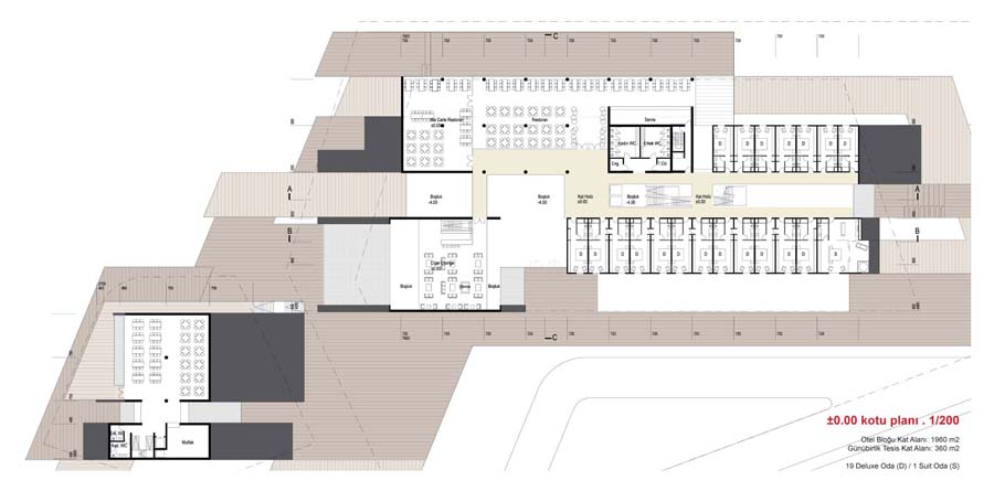
0.00 Kotu Planı
10/24
Paylaş
Resmi Orjinal Boyutunda Göster
Onbir 41 Mimarlık-SCRA
Proje Yeri: Kayseri
Proje Ofisi: FREA, SCRA Mimarlık
Proje Tipi: Otel / Motel
Proje Tipi Grubu: Katılımcı
Tasarım Ekibi: Ramazan Avcı, Seden Cinasal Avcı, Fatih Yavuz, Ömer Emre Şavural, Hasan Okan Çetin
Danışman: Ali Ergin, Bahri Türkmen