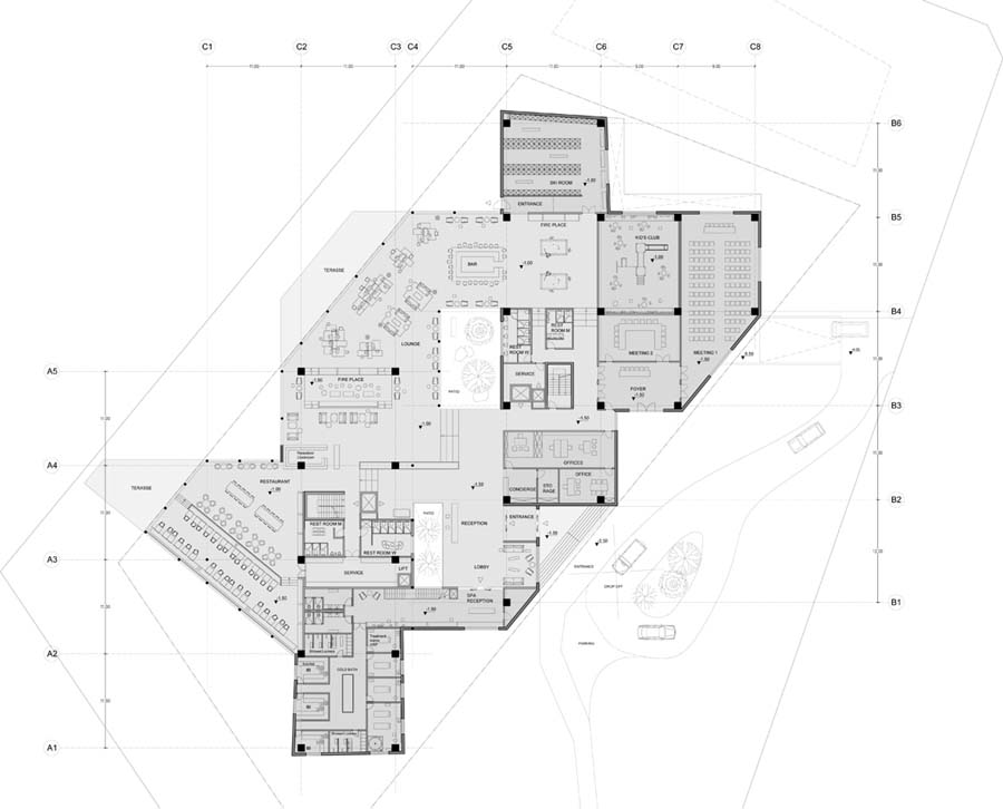
Zemin Kat Planı
10/19
Paylaş
Resmi Orjinal Boyutunda Göster
Emir Drahşan 2
Project Location: Kayseri
Project Office: Emir Drahsan Architecture / Planning
Project Type: Hotel / Motel
Proje Tipi Grubu: Katılımcı
Tasarım Ekibi: Emir Drahşan, Laure Geneste
Yardımcı: Eti Kastoryano, Youssef Haddadi, Emilie Brunel, Umut Koyun, Volkan Yağ, Guillaume Dufilho