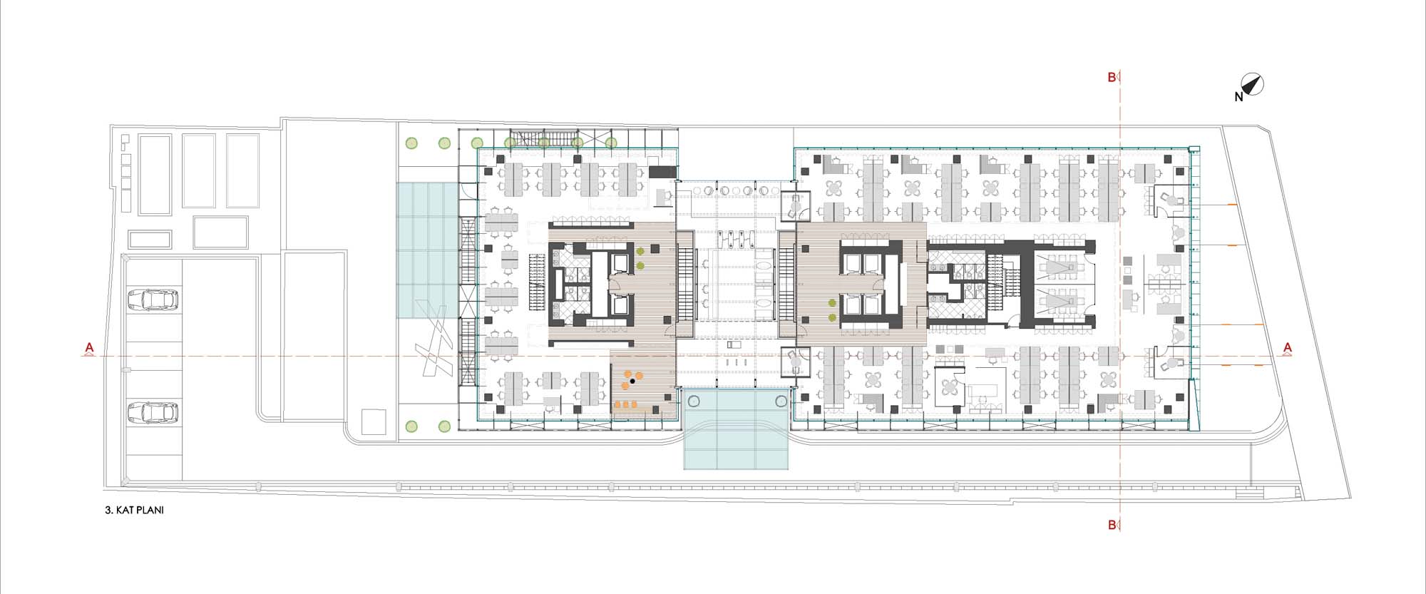
3. Kat Planı
55/59
Paylaş
Resmi Orjinal Boyutunda Göster
Eureko Sigorta
Fotoğraflar: Gürkan Akay
Project Location: İstanbul, Altunizade
Project Type: Offices
Tasarım Ekibi: Murat Metin, Derya Ünlütürk, Esin Poyraz, Gül Alan, Kürşat Giray Koçak, Miray Ferzan Aydın
Employer: Eureko Sigorta
Yardımcı: Ezgi Aktaş, Şeyma Merve Cencik
Ana Yüklenici: Sistema Teknolojik Yapı
Peyzaj Mimarlığı: Cey Peyzaj, Natural Peyzaj
Interior Architecture: Sistema Teknolojik Yapı
Projcet Manager: Aynur Eyüboğlu, Kerem Eldem
Lighting Project: Optimum Aydınlatma
Structural Project: Ülker Mühendislik
Mechanical Project: Ka Mühendislik
Electrical Project: Ka Mühendislik
Acoustic Consultant: Sistema Teknolojik Yapı
Project Start Date: 2011
Project End Date: 2011
Construction Start Date: 2011
Construction End Date: 2011