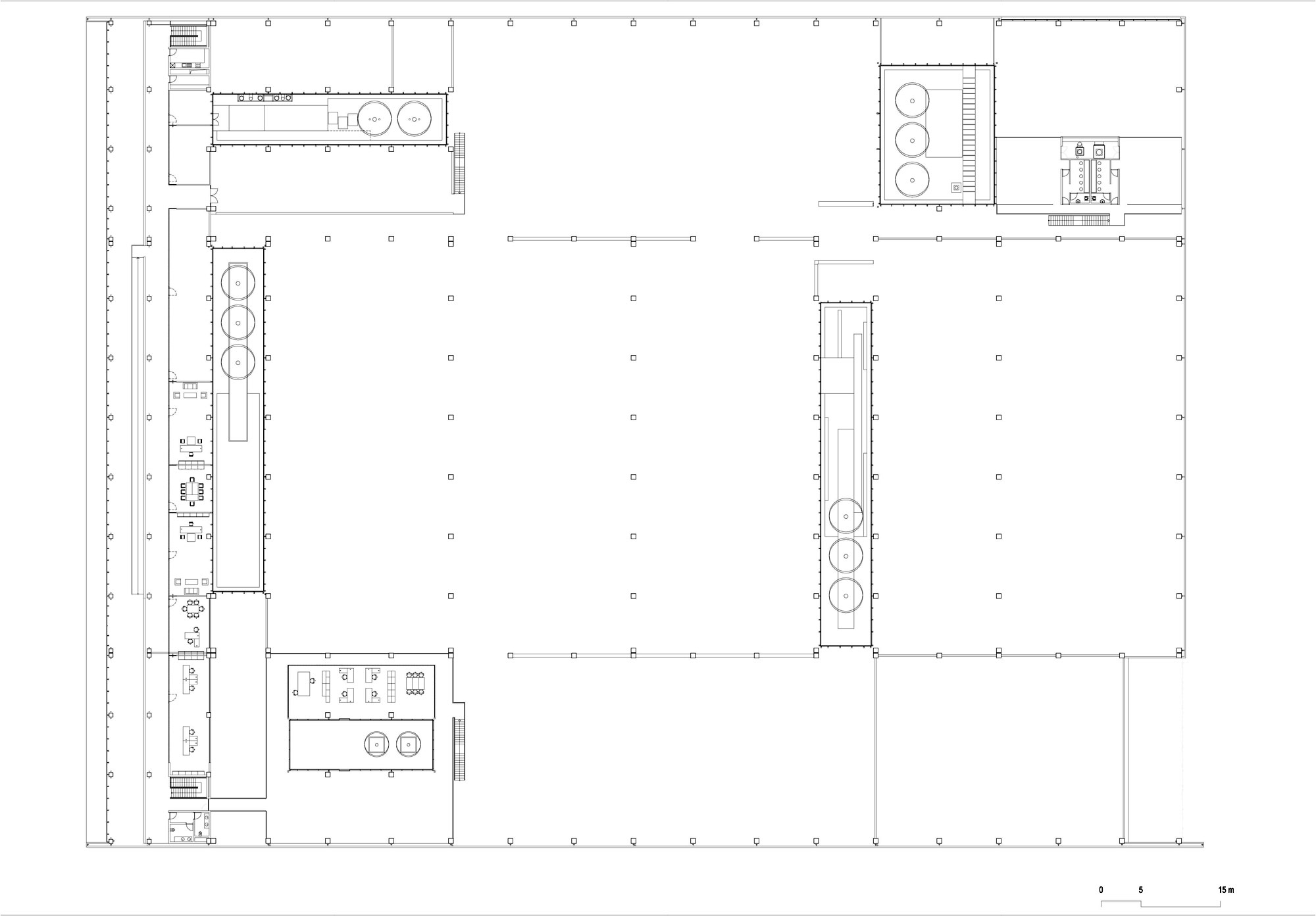
1. Kat Planı
16/16
Paylaş
Resmi Orjinal Boyutunda Göster
İpekyol Teksitl Fabrikası
Fotoğraflar: Thomas Mayer
Proje Yeri: Edirne
Proje Ofisi: EAA-Emre Arolat Architecture
Proje Tipi: Fabrika
Tasarım Ekibi: Emre Arolat, Eda Yazkurt Pelenk, Ertuğrul Morçöl, Meltem Emden, Ekin Erik
İşveren: Twist Giyim
Ana Yüklenici: Alfa Çelik
Statik Projesi: Alfa Çelik
Mekanik Projesi: Toptaş
Elektrik Projesi: Galtek Mühendislik
Proje Başlangıç Yılı: 2004
Proje Bitiş Yılı: 2005
İnşaat Başlangıç Yılı: 2005
İnşaat Bitiş Yılı: 2006
Toplam İnşaat Alanı: 20.000 m2