0303
2/3
Paylaş
Resmi Orjinal Boyutunda Göster
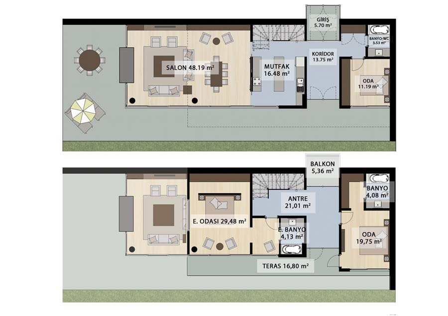
Dalyan Villaları
Proje Yeri: Çeşme, İzmir
Proje Ofisi: Tres Mimarlık
Proje Tipi: Konut Sitesi / Grubu
Tasarım Ekibi: Nüzhet Albayrak
İşveren: Aryom İnşaat
Yardımcı: Oya Okumuş, Uğur Kaya, Anieta Katroshi, Tülin Meydan, Yasin Karali
Proje Başlangıç Yılı: 2012
Proje Bitiş Yılı: 2012
Arsa Alanı: 21.670 m2
Toplam İnşaat Alanı: 5.824 m2