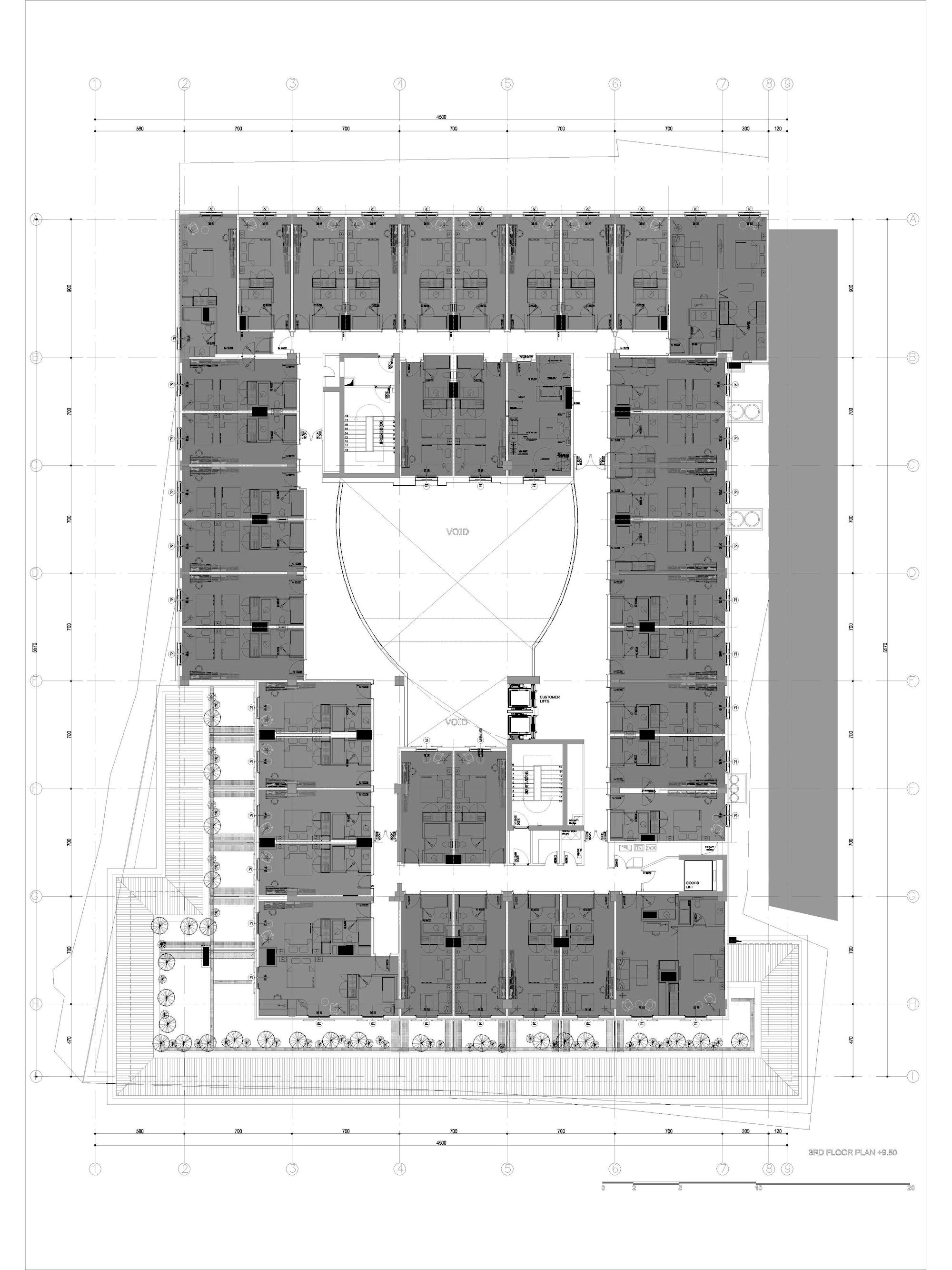
3. Kat Planı
30/33
Paylaş
Resmi Orjinal Boyutunda Göster
Double Tree by Hilton-Old City
Project Location: İstanbul
Project Office: BG Architects
Project Type: Hotel / Motel
Proje Tipi Grubu: Konaklama
Tasarım Ekibi: Nuran Eryeler, Barış Başat, Selin Ezanoğlu, Cenk Aykut, Veciye Öztürk, Emre Gürsoy, Bülent Ergin Güngör
Employer: Erpet İnşaat
Ana Yüklenici: İntaya
Structural Project: Emir Mühendislik
Mechanical Project: GN Mühendislik
Electrical Project: HB Teknik Elektrik Mühendislik
Construction Start Date: 2007
Construction End Date: 2010
Building Plot Area: 2.535 m2
Total Construction Area: 18.808 m2