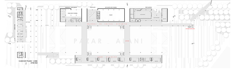
+4.00 Kotu Planı
10/14
Paylaş
Resmi Orjinal Boyutunda Göster
Manisa Belediyesi Hizmet Binası ve Çevresi Ulusal Mimari Proje Yarışması, 2. Mansiyon
Proje Tipi: Belediye Hizmet Binası
Proje Tipi Grubu: 2. Mansiyon
Tasarım Ekibi: Deniz Dokgöz, Ferhat Hacıalibeyoğlu, Orhan Ersan
Yardımcı: Ecem Öksüz, Deniz Coşkun
Statik Projesi: Cemal Coşak
Mekanik Projesi: Salih Emre Damar
Elektrik Projesi: Gökçe Haver Toprak