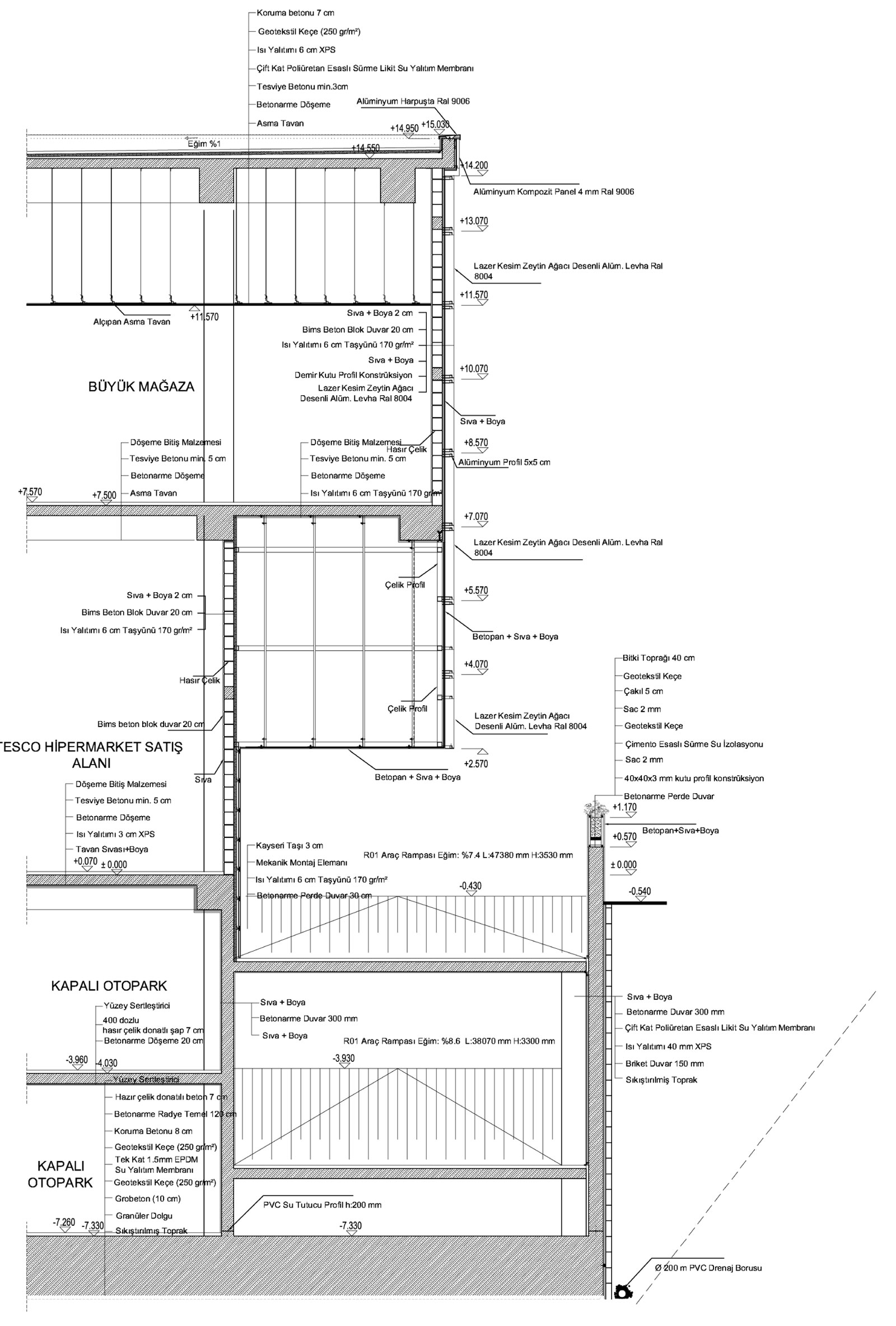
Sistem Kesiti
22/22
Paylaş
Resmi Orjinal Boyutunda Göster
Tarsu Alışveriş ve Eğlence Merkezi
Proje Yeri: Tarsus
Proje Ofisi: Yazgan Tasarım Mimarlık, Altoon + Partners
Proje Tipi: Alışveriş Merkezi, Eğlence Merkezi
Tasarım Ekibi: Kerem Yazgan, Begüm Yazgan
İşveren: Corio
Peyzaj Mimarlığı: Yazgan Tasarım Mimarlık
Proje Yöneticisi: Entegre Proje Yönetim Danışmanlık
Konsept Tasarımı: Altoon + Partners
Statik Projesi: Aydın Pelin-Can Binzet Mühendislik
Mekanik Projesi: Çilingiroğlu Mühendislik
Elektrik Projesi: RAM Mühendislik
Yangın Güvenlik Danışmanı: Karina